Holy Grail

5 MIN READ

Medieval meets early American Prairie in this compact forest home.

By Jan Mitchell

What do you get when you cross Walden Pond with King Arthur’s castle? A custom home nestled deep in the woods of the central Midwest, where one can just imagine the king holding court in the central hall while old Henry revels in peaceful views of a forest-framed pond.

The owner–no stranger to these characters as a history and literature buff–had acquired hundreds of wooded acres in this Midwest farm country. When deciding to build, he produced a typical owner’s wish list: a tight-budgeted cottage with architecturally interesting spaces that maximize views. He contracted with Oakstone Homes, a custom builder in Columbia, Mo., to build the home.

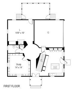
Realizing that a small home in the forest spelled d-a-r-k, Mark Simon, a partner in the architectural firm Centerbrook and chief designer for the project, went to work on the challenge. “It struck me that we needed to have some central space that would bring light down through the whole house,” says Simon. That led the design team of Simon, Charles Mueller, and Todd Delfosse to create a central mini-atrium. “If you can’t afford a whole courtyard,” notes Simon, “this is the next best thing.” A windowed rotunda crowns the central meeting hall of this 2,450-square-foot home. The hall itself then opens into all rooms via doors and interior windows, eliminating the darkness found in most old compact farmhouses.

The open concept design of the rooms allowed for minimal wall framing; all of the main rooms peek into the central atrium.

The design team felt that because of the wooded site it was important to capture the spirit of early Americana. “It seemed it would be regionally contextual to use the spirit, if not the precise methods, of the early American Prairie house,” explains Simon. Indeed, the view driving toward the house, along a logging road and up a steep embankment, isn’t that different from what you might have seen a century ago. One chimney and three faux chimneys add architectural “authenticity.”

Cedar shake siding and a generous eave around the perimeter reflect both the essence and the sheltering function of an early settler’s abode. Windows can remain open to capture breezes even during summer rains. The overhang also keeps out the hot summer sun but lets the lower angles of the warm winter rays in.

As a visitor strolls closer, it becomes clear that this early American complex is really a contemporary home with extraordinary appeal. A front dormer is actually an attic artist loft. Forty feet from the home, a two-story red structure with a gambrel roof poses as a barn but functions as a sculptor’s studio.

The project team indulged the owner’s interest in medieval culture by using bracketing around the home’s exterior and inside the central hall, a subtle nod to the castles of the Middle Ages. Another of the owner’s passions–books–is addressed with an upstairs study. There, oak floors, bookcases, and cozy window seats provide ample opportunity to escape with Celtic mythology.

Capitalizing on the bucolic setting, a rear-screened porch provides a respite from summer insects. The deck above is shared by the master and guest bedrooms and affords sunbathing opportunities during the “shoulder” season. Bracketing is repeated on the porch and deck, reinforcing the medieval theme.

To save money, Simon designed the home as a simple box and used creative cost cutters, like white-painted millwork in the central hallway and reddish painted bookcases in the study. But the overall feel of the home is far from basic. The design team used monumental proportioning to give the effect of graciousness and volume.

In order to keep costs down, “we kept the overall plan dead simple,” says Mark Simon of Centerbrook, an architectural firm in Centerbrook, Conn.

The home’s symmetrical elevation gives it a formal outside appearance and adds to an air of grandeur. But just inside the front door that symmetry shifts. The stairs and rotunda are set off center to accommodate the side-entry, two-bay garage, well hidden from visitors arriving in the front.

Interiors are simple and informal. “Making interesting spaces with standard materials was the key,” says Simon. “We didn’t go overboard in plumbing or lighting fixtures.” Main rooms feature red oak floors. Bathrooms have ceramic tiles on floors and halfway up the walls. The living room, an inviting, warm space, has as its centerpiece a wood-burning stove set in a dramatic alcove. The alcove is lined with tiles that look like brick but without the mass and weight.

The kitchen is a simple space with rich but practical details like a granite-topped island and ample built-in storage. The island houses cabinets and counter space to give more play to the windows, which in turn pay homage to the woods and bring in light. Windows play another important role in the home: They eliminate the need for air conditioning. An upstairs window band provides natural ventilation to counter the central Missouri summer.

Wayne Guariglia, president of Oakstone Homes, says it took a good deal of site work to put in a road and to carve a space about 200 feet around the footprint of the remotely located home. The tight space dictated unusual care in delivery and handling of materials. Another challenge was the degree of architectural specifications. “We had never encountered the volume of detail in the specs that we did on this job,” says Guariglia. “Centerbrook was very focused and excited about the project and was closely involved in it. What was remarkable is that there was such good cooperation between the architect, the owner, us.”

The result is a home that is all at once cozy and magnificent. As Simon notes, “I like the idea of making something simple and still have it be this interesting. You get closer and realize that it’s just an interesting place to be.”

Jan Mitchell is a freelance writer for the housing industry living in the San Francisco Bay area.

About the Author

Upcoming Events

  • Protecto Wall VP Standard Installation Video

    Webinar

    Register for Free
  • How Right-Sized Plumbing Saves Money, Saves Water, and Protects Wellness

    Webinar

    Register for Free
  • Building Careers from the Ground Up: The IUPAT Floor Covering Apprenticeship and Training Program

    Webinar

    Register for Free
All Events