This contemporary kitchen is housed in a 1920s warehouse buildin…
This contemporary kitchen is housed in a 1920s warehouse building. The structure has colorful history throughout the years as a pool hall, night club, grocery store, and even a church.
David Hill
A galley kitchen layout is open to the great room, yet the islan…
A galley kitchen layout is open to the great room, yet the island provides a clear demarcation between cooking and living/dining.
David Hill
Hanging from the restored ceiling are off-the-shelf floorlamps t…
Hanging from the restored ceiling are off-the-shelf floorlamps that were re-rigged as pendants.
David Hill
The Southern Delite Cafe sign on the far brick wall was discover…
The Southern Delite Cafe sign on the far brick wall was discovered in a trash pile on the property. The restaurant occupied the building for 10 years, starting in 1961.
David Hill
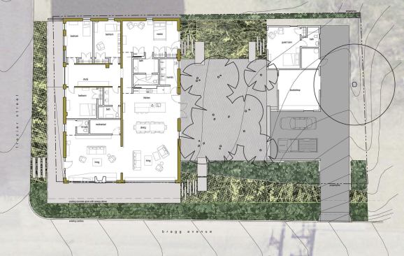
New openings were made in the old building to encourage good flo…
New openings were made in the old building to encourage good flow between the kitchen and the brand-new garden.
Courtesy HILLworks
The transformed warehouse includes a garden, guest room, and stu…
The transformed warehouse includes a garden, guest room, and studio.
The judges loved 274 Bragg’s “insertion of a contemporary kitchen into the context of an old structure,” and they rewarded the project with a Grand Award. Especially impressive to the jury was how compatibly this modern kitchen gets along with its 1920s warehouse shell. The building’s original metal-stamped ceiling tiles were removed, restored, and rehung, with plaster replicas made to restore missing pieces. To light the kitchen, off-the-shelf floor lamps were reworked and hung from the attic, eliminating the need for junction boxes within the restored ceiling.
The galley layout opens the kitchen to the rest of the living area while defining it as a high-functioning place for cooking. A prep island spans the width, drawing the boundary between it and the living and dining area. The island features a full-size sink (rather than the smaller-sized basin often found on islands) and dishwasher, plus storage and space for eating on the living-room side. This is a fine example of the kitchen as hub: equal parts hard-working and homey.
Learn more about markets featured in this article: Birmingham, AL.
Amy Albert is editor of Custom Home and a senior editor at Builder. She covers all aspects of design. Previously, she
was kitchen design editor at Bon Appetit;
before that, she was senior editor at Fine
Cooking, where she shot, edited, and wrote stories on kitchen design. Amy
studied art history with an emphasis on architecture and urban design at the
University of Pennsylvania. She lives in Los Angeles. Write her at aalbert@hanleywood.com, follow her on Twitter @CustomHomeMag and @amyatbuilder, or join her on Custom Home's Facebook page.