A Sink with a View is a hard-working kitchen. The plan offers se…
A Sink with a View is a hard-working kitchen. The plan offers several views from the sink side of a stainless-topped island, an element that anchors the room.
Alan Karchmer
A floor-to-ceiling glass wall offers big views of Washington, DC…
A floor-to-ceiling glass wall offers big views of Washington, DC's Rock Creek Park.
Alan Karchmer/Sandra Benedum
The kitchen includes two work islands, a kitchen office, and a d…
The kitchen includes two work islands, a kitchen office, and a dining area. The second island, near the window-wall, has a second sink, as well as chairs for bar-style seating. The dining area is to the right.
Alan Karchmer
To the far-end of the kitchen's window-wall side is an office sp…
To the far-end of the kitchen's window-wall side is an office space that's a quiet spot for paying bills, sending email, or doing homework.
Alan Karchmer
Just beyond the kitchen is the living room, with a door that lea…
Just beyond the kitchen is the living room, with a door that leads to the side yard.
Courtesy Treacy & Eagleburger Architects
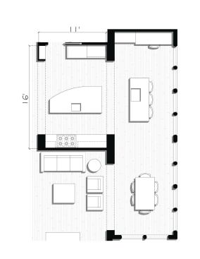
Elevation drawings show that this kitchen was designed for high …
Elevation drawings show that this kitchen was designed for high function on a friendly and accessible scale.
Courtesy Treacy & Eagleburger Architects
The kitchen remodel makes the most of a center-hall plan, drawin…
The kitchen remodel makes the most of a center-hall plan, drawing company into the kitchen.
Courtesy Treacy & Eagleburger Architects
The main working island is wider at the end opposite the kitchen…
The main working island is wider at the end opposite the kitchen entry and curved on one side.It performs the deft feat of guests right into this inviting kitchen while steering them clear of the cook's workspace.
A Sink with a View actually has a few views: the kitchen, the hallway that leads to it, and the park outside. This remodeled kitchen won the judges’ approval for its inviting layout and smart design. “Windows create a nice moment,” said the jury of floor to ceiling glass panes that look out on DC’s famed Rock Creek Park. The judges commended the smart design of the main kitchen island, topped with stainless steel. Curved on one side, it accomplishes a deft feat, drawing friends and family into the kitchen while steering them clear of the cook’s work area. It includes an integral sink that faces the room (rather than the wall), further encouraging interaction. Perpendicular to the main island is a smaller one that includes seating and a smaller sink. Tucked away beyond the secondary island is a desk that’s close enough to be within earshot of the action yet sufficiently tucked away to provide space and quiet for sending email, paying bills, or doing homework.
Amy Albert is editor of Custom Home and a senior editor at Builder. She covers all aspects of design. Previously, she
was kitchen design editor at Bon Appetit;
before that, she was senior editor at Fine
Cooking, where she shot, edited, and wrote stories on kitchen design. Amy
studied art history with an emphasis on architecture and urban design at the
University of Pennsylvania. She lives in Los Angeles. Write her at aalbert@hanleywood.com, follow her on Twitter @CustomHomeMag and @amyatbuilder, or join her on Custom Home's Facebook page.