Clear Distinction

2 MIN READ

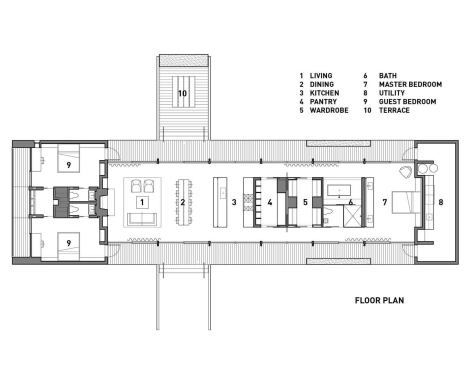
The master bedroom suite of the North Beach residence reads like a mirror image of the building’s kitchen. Here, a wide vanity counter backs against the same volume that contains the kitchen pantry. Something of a Swiss Army knife, this glass-clad element delineates the master bedroom space while folding in a walk-through closet, powder room, shower, and bathing area, affording the appropriate degree of privacy to each.

Glass pocket doors extend like wings to close off the twin corridors that flank the central element, but the flat, white ceiling, wood floor, and glass exterior walls flow uninterrupted between public and private realms, maximizing the perception of volume in the modestly sized interior. A consistent palette of materials—marble slabs at the walls and counters, marble tile at wet-area floors, white porcelain fixtures, and glass doors and partitions—gives the dwelling an all-of-a-piece feeling.

The bathing area, with its boxlike freestanding tub, opens to the main ceiling, but architect Joseph Herrin dropped a lid over the shower and toilet areas so they could be ventilated separately. “It’s really quarantining the atmosphere of the bath area from the rest of the house, and that’s all,” he explains. Establishing visual privacy was an even simpler matter. Because the site encompasses more than three acres of land bounded by a private beach, views into the house weren’t a consideration. In planning this building with his clients, “The public/private conversations were not about neighbors,” Herrin reports, but rather, about maintaining privacy between the homeowners and their occasional guests. Translucent drapes on the outside window walls are the master bath’s only gesture toward modesty. Otherwise, it’s as open to the outdoors as any other part of the house. “It’s just a private site,” he notes. “You don’t need any walls.”

Project Credits
Builder: David Shore Construction, Deer Harbor, Wash.
Architect: Heliotrope Architects, Seattle
Living space: 150 square feet (bath only), 2,100 square feet (whole house)
Construction cost: Withheld
Photographer: Benjamin Benschneider.

Resources:Bathroom fittings: Dornbracht Americas; Bathroom fixtures: Lacava, TOTO USA, WETSTYLE; Interior doors: Raumplus North America; Windows: Fleetwood Windows and Doors.

About the Author

Bruce D. Snider

Bruce Snider is a former senior contributing editor of  Residential Architect, a frequent contributor to Remodeling. 

Upcoming Events

  • Protecto Wall VP Standard Installation Video

    Webinar

    Register for Free
  • How Right-Sized Plumbing Saves Money, Saves Water, and Protects Wellness

    Webinar

    Register for Free
  • Building Careers from the Ground Up: The IUPAT Floor Covering Apprenticeship and Training Program

    Webinar

    Register for Free
All Events