Mid- Century Modernized

A modern house that had been chopped up into dark spaces is infused with abundant light, open flow, and its original spirit

3 MIN READ

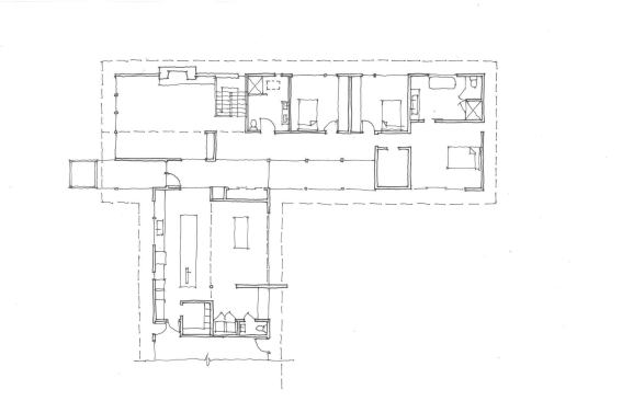
“We basically got out of the way of a good house,” declares John DeForest. The architect’s succinct statement describes the renovation of a mid-century modern house in Seattle’s Lakewood neighborhood. Over the years, the house had been chopped up into dark spaces, DeForest adds, so his approach was all about “finding the best parts of what was there and highlighting them.”

A larger, more open kitchen and dining area is one of those newly highlighted best parts. The homeowners have three kids ranging in age from 6 to 9 years old, so creating an indestructible space where the entire family could be together was a major part of their program. DeForest worked closely with his clients, who offered a lot of great input on how such a key room should look and function. Specific locations outfitted for everyone to do his or her own thing but still interact, as well as durable good-looking materials, are key components in achieving the final result.

Super Island as Anchor

The old layout kept everyday tasks like cooking and laundry detached from living spaces. DeForest knocked down walls, moved the living room down the hall, and added a unobtrusive but connected computer/sewing station as well as a mudroom complete with individual lockers. Square footage that formerly was allocated to living, dining, cooking, and laundry is now a generous sweeping kitchen/dining room that serves as the family hub.

The more than 700 square feet of space includes zones for numerous activities, many of which can take place at the super island. At a whopping 15.2 feet long and 2.6 feet deep, the kitchen island is capable of handling food prep, buffet service, homework help, snack time, arts and crafts, cocktail service, and more. One unexpected benefit is that “the husband uses the end facing a wall-mounted TV as his own personal sports bar,” DeForest chuckles.

Balancing Splurges and Saves

Creating all of these areas to withstand daily wear-and-tear without losing their public good looks meant playing the high-low game. DeForest balanced expenditures on pricey materials such as solid-surface countertops and decorative concrete floors with cost-saving products such as Ikea cabinets, paint-grade Birch doors, and mid-range appliances. Those durable yet sleek countertops wrap around the sides of the island and continue up the walls as backsplashes, a terrazzo-like concrete flooring flows throughout the house—even into the shower where it slopes into a hidden drain—and trees destined for landfill were rescued and crafted into a custom dining table.

Additional savings and architectural interest resulted from leaving some things alone. For example, the design team always planned to protect and conserve existing wood ceilings. “We had to remove it in certain spots,” DeForest explains, “but we treated those planks like a precious commodity and reused them in other places.”

A structural post uncovered during demolition of the previous kitchen wall wasn’t supposed to remain part of the new space, however. DeForest proposed several ways to get rid of it, but while he and the homeowners discussed options everyone became so attached to the exposed steel pole that it ended up staying. That move or lack thereof saved a considerable amount in structural costs and now the kids enjoy climbing it, so everybody wins.

About the Author

Shelley D. Hutchins

Shelley D. Hutchins, LEED AP, writes about residential construction and design, sustainable building and living, and travel and health-care issues.

Upcoming Events

  • Happier Homebuyers, Higher Profits: Specifying Fireplaces for Today’s Homes

    Webinar

    Register for Free
  • Sales is a Sport: These Tactics Are the Winning Play

    Webinar

    Register for Free
  • Dispelling Myths and Maximizing Value: Unlock the Potential of Open Web Floor Trusses

    Webinar

    Register for Free
All Events