Neutral Party

1 MIN READ

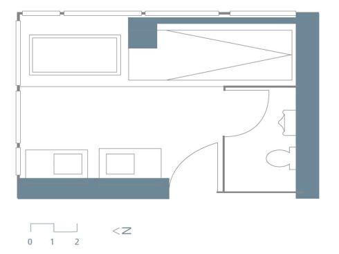
The last thing this master bathroom needed was more visual drama. Located on the 19th floor of a luxury high-rise in downtown Vancouver, B.C., the project boasts views across Coal Harbour to evergreen-filled Stanley Park, one of the city’s top attractions. So when charged with creating the unit’s interiors, designer Michelle Biggar introduced a clean, minimalist palette of colors and materials that wouldn’t compete with the striking scenery. “I really like white in a bathroom—it’s just so clean and very minimal,” she says. “It’s a very neutral background for the setting … it doesn’t fight with the view or anything else.”

No recommended Sponsor contents to display.

Upcoming Events

  • Sales is a Sport: These Tactics Are the Winning Play

    Webinar

    Register for Free
  • Dispelling Myths and Maximizing Value: Unlock the Potential of Open Web Floor Trusses

    Webinar

    Register for Free
  • Building Future-ready Communities for Less

    Webinar

    Register for Free
All Events