pattern play

2 MIN READ

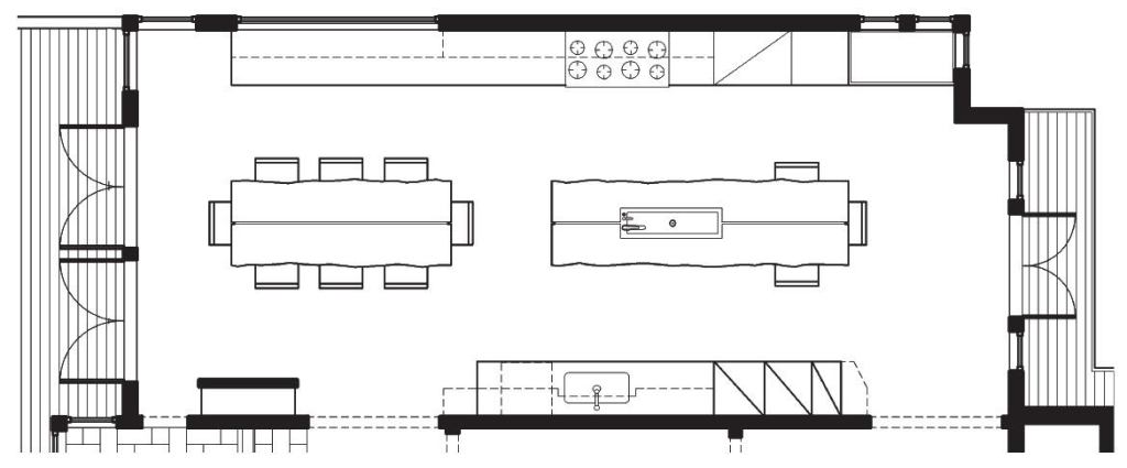
Courtesy Finne Architects

The clients for this Seattle kitchen remodeling job wanted more space and better light. Nils C. Finne, AIA, suggested knocking down walls in the dining room and breakfast nook to create one contiguous room. But the owners were nervous, at least initially, “about feeling like they were eating in a kitchen,” he says. Those worries vanished once they saw Finne’s design for a light-filled space full of stunning details and textural contrasts.

A custom island embodies Finne’s “crafted modernism” concept for the 640-square-foot space. For the sake of continuity, fabricators used planks from the same elm tree to make the island countertop and a custom dining table nearby. To add visual and tactile interest, they left the long outside edge of each piece raw and used sleek machine finishes on the remaining sides.

Fabricating the open island was especially tricky. Plumbing, wiring, and disposal installations had to be exact, Finne says, so everything would be in the right spot when the island was put in place. To make those exposed guts look good, the architect speced blackened copper piping and a stainless steel disposal shroud. He also concealed the electrical outlets beneath the island tabletop, because there are no vertical surfaces. It “was a huge challenge,” he acknowledges, “because the mechanics of an island are usually hidden, and in this case nothing was hidden.”

Finne’s choice of subtly opposing textures and materials in soothing hues communicates comfort while also conveying a contemporary edge. Panels of slender bamboo stalks are set in yellow cedar door frames. Sea grass embedded in a translucent resin panel filters daylight while screening undesirable views. And a variegated stone mosaic backsplash provides a colorful counterpoint to the polished limestone counters.

Despite the varied patterns, the overall space feels calm because “the color palette is simple and almost monochromatic,” Finne explains. And yet, he notes slyly, “on second and third looks, you discover this interplay of materials and details.”

architect: Finne Architects, Seattle
general contractor: Schultz Miller, Seattle
cabinet fabricator: Seaboard Cabinet Co., Seattle
wood fabricator: Urban Hardwoods, Seattle
steel fabricator: Illume Inc., Seattle
resources: hardware: Sun Valley Bronze; plumbing fixtures: Elkay USA, Hansgrohe; range: Wolf Appliance; refrigerator: Sub-Zero

About the Author

Shelley D. Hutchins

Shelley D. Hutchins, LEED AP, writes about residential construction and design, sustainable building and living, and travel and health-care issues.

Upcoming Events

  • Build-to-Rent Conference

    JW Marriott Phoenix Desert Ridge

    Register Now
  • Builder 100

    Dana Point, CA

    Register Now
  • Protecto Wall VP Standard Installation Video

    Webinar

    Register for Free
All Events