raising L

2 MIN READ

The residents of this Palm Desert, Calif., home wanted a kitchen design that would allow them to enjoy their meals al fresco. As grandparents, they also wanted a room where they could stay connected with the grandchildren. Their son, the architect, granted both wishes—and threw in efficiency for good measure.

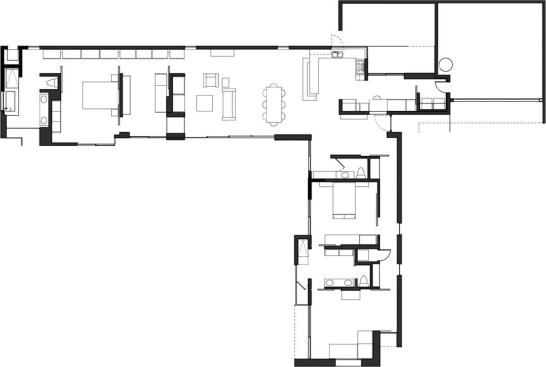
An open kitchen sits at the crux of an L-shaped floor plan and provides easy access to both wings of the house. Through receding glass walls, the adjacent dining/living area extends to the pool and courtyard outside, enabling the homeowners to prepare dinner while watching the kids cavort outdoors. For quieter times, a door just beyond the cooktop leads to a small walled-in terrace with reflecting pool. Windows above the kitchen sink turn the corner, offering views to this outdoor eating nook. “The entire house is a series of Ls, from floor plan to massing to details like the kitchen counters and cabinets,” says Jay Reynolds, AIA, principal, OJMR Architects, Los Angeles. “It goes to the idea of space flowing smoothly from one area to another.

“The layering of the stone and cabinetry is a continuum of that idea,” he adds. The eat-in counter’s solid-marble surface extends to the floor on one side. The marble also projects above adjacent slate countertops and its corner continues beyond the walnut base cabinets, giving the heavy stone a floating quality. “Having the black slate also wrap the corner and drop down makes the eat-in counter look even lighter and more separate,” Reynolds explains. Two additional L-shaped features—a marble backsplash and a gray cinder-block wall—bookend the space.

Because of the kitchen’s small size (just 195 square feet of working space), Reynolds speced only two upper cabinets and relied on some other spacial tricks to maximize efficiency. For instance, along the passage from the garage entry, a 17-foot-by-8-foot pantry and the refrigerator flank a spacious pass-through that doubles as a desktop. This layout facilitates grocery unloading as well as list-making. Reynolds also clustered the oven, stove, and sink in a corner with plenty of prep space. Long, shallow drawers beneath the eat-in bar hold dishes and glassware for simple service or a buffet. In yet another L-shaped detail, the drawer fronts bring along one side as they pull out. “I really like articulating the corner as an abstract shape of basic shelter,” he says.

architect/general contractor/interior designer: OJMR Architects, Los Angeles

resources: cooktop and oven: Dacor; plumbing fittings: Elkay; plumbing fixtures: Grohe; refrigerator: GE Appliances; windows and patio doors: Fleetwood

About the Author

Shelley D. Hutchins

Shelley D. Hutchins, LEED AP, writes about residential construction and design, sustainable building and living, and travel and health-care issues.

Upcoming Events

  • Protecto Wall VP Standard Installation Video

    Webinar

    Register for Free
  • How Right-Sized Plumbing Saves Money, Saves Water, and Protects Wellness

    Webinar

    Register for Free
  • Building Careers from the Ground Up: The IUPAT Floor Covering Apprenticeship and Training Program

    Webinar

    Register for Free
All Events