Ridgeline House Kitchen, Pasadena, Calif.

Custom Kitchen

2 MIN READ

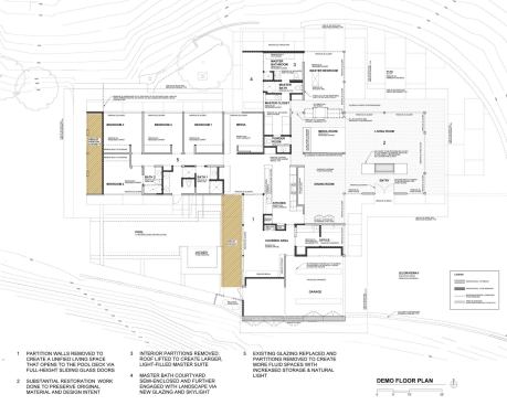
The work—and former residence—of Southern California modernist Clay Matthews, this house proved a solid platform for a recent major renovation. “It had pretty good bones,” observes David Montalba. Montalba made the most of that raw material in a kitchen/family room that also serves as a screening room for its owner, who works in the film industry. The kitchen area centers on two islands oriented toward the family room’s large TV.

Crisply detailed custom millwork follows the design of the manufactured cabinets, which wrap walnut boxes around brushed aluminum doors and drawer fronts. Thin stone composite counters echo, in more refined form, the stained concrete floor, and a large skylight opens the kitchen workspace to the sky. Our judges admired the seamless integration of kitchen functions with casual dining and entertaining, as well as the connection of indoor spaces with the adjacent pool deck.


Entrant/Architect: Montalba Architects, Santa Monica, Calif.; General contractor: Sarlan Builders, Beverly Hills, Calif.; Living space: 4,700 square feet (whole house), 888 square feet (kitchen/family room); Site: 0.86 acre; Construction cost: Withheld; Photographer: Dominique Vorillon.


Product details

Bathroom fittings: Dornbracht, www.dornbracht.com, Hansgrohe, www.hansgrohe-usa.com; Bathroom fixtures: Duravit, www.duravit.com, Geberit, www.geberitnorthamerica.com, TOTO USA, www.totousa.com, Zuma, www.zumacollection.com; Countertops, kitchen cabinets, kitchen fittings, and kitchen fixtures: Bulthaup, www.bulthaup.com; Dishwasher: Miele, www.mieleusa.com; Doors: Fleetwood, www.fleetwoodusa.com; Flooring (carpet): Ralph Lauren, www.laurenhome.com; Flooring (ceramic tile, stone, or concrete): Walker Zanger, www.walkerzanger.com; Garbage disposer: InSinkErator, www.insinkerator.com; Hardware: C.R. Laurence Co., www.crlaurence.com, Fleetwood, www.fleetwoodusa.com, FSB, www.fsbna.com; HVAC equipment: Goodman, www.goodmanmfg.com; Lighting fixtures: Bartco Lighting, www.bartcolighting.com, Contrast Lighting, www.contrastlighting.com, Liton Lighting, www.litonlighting.com, Modular, www.modularinternational.com, Tokistar, www.tokistar.com; Oven: Gaggenau, www.gaggenau.com, Miele, www.mieleusa.com; Paints/stains/wall finishes: ICI Paints, www.icipaints.com, Rust-Oleum, www.rustoleum.com, Walker Zanger, www.walkerzanger.com; Refrigerator: Sub-Zero, www.subzero.com; Roofing: CertainTeed, www.certainteed.com; Skylights: Lane-Aire, www.lane-aire.com

About the Author

Bruce D. Snider

Bruce Snider is a former senior contributing editor of  Residential Architect, a frequent contributor to Remodeling. 

Upcoming Events

  • Protecto Wall VP Standard Installation Video

    Webinar

    Register for Free
  • How Right-Sized Plumbing Saves Money, Saves Water, and Protects Wellness

    Webinar

    Register for Free
  • Building Careers from the Ground Up: The IUPAT Floor Covering Apprenticeship and Training Program

    Webinar

    Register for Free
All Events