Soft Touch

1 MIN READ

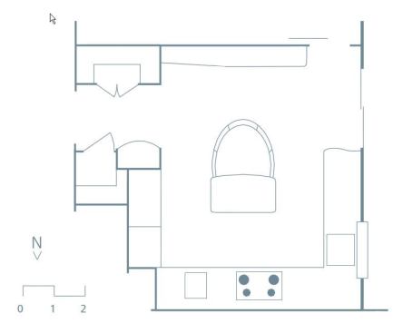
The most well-laid-out kitchen in the world won’t work unless it creates a welcoming atmosphere. That’s why Amory Architects decided to infuse this Brookline, Mass., kitchen addition and renovation with a series of curves and oval forms. “One of our goals in all our projects is to make people feel good every time they walk into a space,” says principal in charge David Amory. “Kitchens have lots of hard surfaces, and part of our goal here was to soften that.” He and project architect Chris Brown designed a sinuous wall and desk for the room’s office nook, and a slightly vaulted kitchen ceiling to carry the eye toward the backyard. A central oval skylight lets the sun’s rays fall onto a similarly shaped, custom-made island table. Even the cabinetry features curved corner shelving to match a rounded-off counter corner.

Amory and Brown worked with the clients to choose colors and materials that would support the soothing effect of all those curves. Honed granite counters and a tumbled marble backsplash form matte surfaces that complement the quiet gleam of stainless steel appliances. And a gentle, nature-inspired palette of off-whites and light greens complements the room’s organic shapes. A wall of storage on the kitchen’s south side features ribbed-glass fronts on the upper cabinets; above them, paneling made of painted plywood and half-round molding highlights the ceiling’s subtle curve. Natural-finish maple cabinets mix with painted ones and contrast against the darker oak floor. “We wanted a balance of materials,” explains Amory.

Project Credits
Builder:
Dolan Contracting, Canton, Mass.
Architect: Amory Architects, Boston
Project size: 269 square feet
Construction cost: Withheld
Photographer: Greg Premru

Resources: Dishwasher: Bosch; Lighting fixtures: Alkco, Arroyo Craftsman, Lightolier, and Tech Light; Oven: Wolf; Plumbing fixtures: Franke; Range hood: Gaggenau; Refrigerator: Sub-Zero; Wall tile: Stone Source; Warming drawer: Wolf.

About the Author

Upcoming Events

  • Protecto Wall VP Standard Installation Video

    Webinar

    Register for Free
  • How Right-Sized Plumbing Saves Money, Saves Water, and Protects Wellness

    Webinar

    Register for Free
  • Building Careers from the Ground Up: The IUPAT Floor Covering Apprenticeship and Training Program

    Webinar

    Register for Free
All Events