Leone Living, Santa Monica, Calif.

Santa Monica, Calif.

1 MIN READ

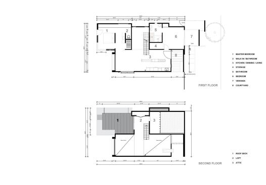
Minarc, whose name is a play on “minimalism in architecture,” took a down-at-the-heels house in Santa Monica and worked its trademark magic for simplified and light-filled transformations.

The goal was a redo that focuses on energy and the environment as much as on design, so the architects sited the house for maximum daylight and cross ventilation. Large 16-foot, single-hung windows and a skylight bring in light, while the absence of paint, chemicals, tiles, and carpet promote good indoor air quality. The unconventional palette includes a recycled-content exterior cladding, as well as cabinets, chairs, and stairs covered in rubber made from recycled tires.

MERIT
Category: Whole-house makeover or significant addition
Entrant/Architect/Interior designer: Minarc, Santa Monica, Calif.
Builder: Homeowner

About the Author

Upcoming Events

  • Happier Homebuyers, Higher Profits: Specifying Fireplaces for Today’s Homes

    Webinar

    Register for Free
  • Sales is a Sport: These Tactics Are the Winning Play

    Webinar

    Register for Free
  • Dispelling Myths and Maximizing Value: Unlock the Potential of Open Web Floor Trusses

    Webinar

    Register for Free
All Events