Loft Conversion

Washington, D.C.

1 MIN READ

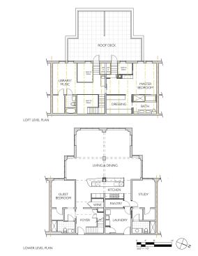
The owners already lived in one loft unit and didn’t waste any time snapping up the one next door when it became available. The fun was figuring out how to merge the two spaces in ways that were complementary.

In keeping with the loft aesthetic, architect Steven Spurlock kept only the barest essential structure. Knocking out portions of the original dividing wall between units, he allowed the kitchen, living, and dining areas to span one large, open space, which he unified with new bamboo flooring.

The kitchen’s dark-stained riff-cut oak cabinets conceal all of the appliances except for a gourmet cooking range and hood. A matching, furniture-like island—bisected by a structural column that once separated the two units—holds a fireplace and media cabinet on one side and casual bar seating on the other.

Project Details:

Special Focus

Category: Interior architecture

Entrant/Architect: Wnuk Spurlock Architecture, Washington, D.C.

Builder: CMG, Washington

There were places, though, where the original party wall proved handy in dividing up small functional areas. One redundant foyer was converted into a laundry and utility room, providing a “back door” for catering and deliveries, plus a walk-in pantry. On the opposite side, a sliver of square footage left over behind the new kitchen made for a tidy little wine room.

Upstairs, the loft’s dramatic exposed roof structure is offset with white walls and simple maple casework, which defines sleeping, dressing, and bathing areas, as well as a music library. The icing on top is a double-wide roof deck overlooking the romantic cupolas, spires, and monuments of Washington.

Learn more about markets featured in this article: Washington, DC.

About the Author

Upcoming Events

  • Happier Homebuyers, Higher Profits: Specifying Fireplaces for Today’s Homes

    Webinar

    Register for Free
  • Sales is a Sport: These Tactics Are the Winning Play

    Webinar

    Register for Free
  • Dispelling Myths and Maximizing Value: Unlock the Potential of Open Web Floor Trusses

    Webinar

    Register for Free
All Events