Michael Graves Designs Accessible Homes for Wounded Vets

With Americans aging, the future of home building might be in accessibility and universal design.

3 MIN READ

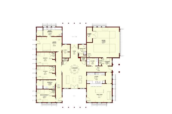
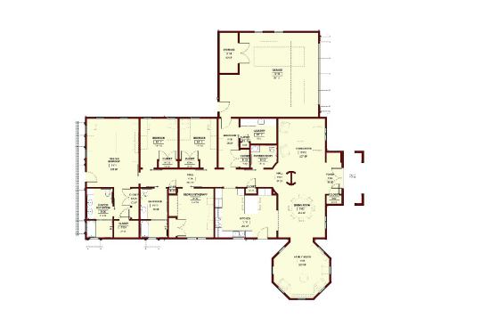
The Wounded Warriors Home Project is no ordinary veteran’s housing. It’s designed in response to the new generation of veterans being created by the wars in Iraq and Afghanistan, but it also has a personal touch. The home designs sprang from the mind of Michael Graves, an architect who has been paralyzed since 2003 and knows what it’s like to have limited mobility and special needs.

“I wanted to design something veterans would be proud to live in,” Graves says. “Something that looks normal.”

The prototype project (designed by Michael Graves and Associates and IDEO) is a partnership between Clark Realty Capital and the U.S. Army. Consisting of two homes, the project aims to set a new standard in accessible design. “They wanted a prototype design that could be copied all over the country,” Graves says.

The homes are a direct response to the needs of today’s wounded vets dealing with loss of limbs, third degree burns, impairment of senses, traumatic brain injury, hearing loss, spinal cord injury, low vision, and post-traumatic stress disorder.

“People are coming back from the wars and are being treated for things they would have died from before,” Graves explains. “Now they have an opportunity to re-enlist.”

The idea of the homes goes beyond mere universal design and specifically targets vets, says Graves. To help the soldiers deal with their injuries, Graves packed the designs with thoughtful features—such as adjustable-height kitchen countertops and sinks, easy-access rooms and closets, and automatic doors—achieving a greater degree of accessibility than what is seen in typical universally designed homes.

The homes also feature open-plan living spaces on one level, wide corridors, no carpets, wood floors, illuminated rocker switches, curbless showers with linear drains, and lever door handles, among other elements. Contrasting floor finishes serve as a border to enhance visibility; sensors track whether doors and windows are open or closed; and mobile base cabinets on casters provide open space below sinks for optimum wheelchair accessibility. “The revolutionary new spaces are thoughtfully conceived to make these heroes’ lives more dignified, joyful, healthy, and rich with positive experiences,” the developer says.

“Everywhere, the architecture and design of the homes demonstrate a unique insight into the lives of those with limited mobility—and the reason why is simple: it was all created by someone who knows the challenges that people with special needs have to face,” the developer says. “Michael’s struggled with them for eight years, and much of his recent work has been devoted to designing newer and better everyday products that are as beautiful as they are easy to us.”

Though the homes directly address the needs of wounded soldiers, some of the features come from the universal design playbook, such as rocker switches, lever door handles, and zero-clearance thresholds and drains. Consultants say the issue of accessibility may be the next major movement to sweep the home building industry, especially as 78 million baby boomers grow older.

As part of a public-private partnership to redevelop more than 2,000 homes across 15 communities at Fort Belvoir, the prototype houses are scheduled to be unveiled on Nov. 30 at the Fort Belvoir Army Base in Fort Belvoir, Va.

Nigel F. Maynard is a senior editor at Builder.

About the Author

Upcoming Events

  • Build-to-Rent Conference

    JW Marriott Phoenix Desert Ridge

    Register Now
  • Builder 100

    Dana Point, CA

    Register Now
  • Protecto Wall VP Standard Installation Video

    Webinar

    Register for Free
All Events