New Moon Cottage

Harvey Cedars, N.J.

1 MIN READ

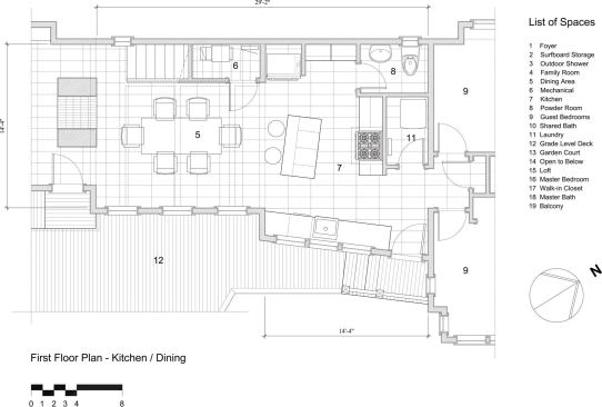
This 1,800-square-foot beach cottage off the coast of Barnegat Bay has the crisp white walls and white window casements you’d expect in a seaside home, but architect Rich Bubnowski and interior designer Donna Grimes passed on the usual white wicker furniture and sea glass tile in favor of an earthier palette that evokes the ruggedness of the Mid-Atlantic coastline. The kitchen cabinetry and double-sided fireplace surround are reclaimed oak with a whitewash stain to resemble driftwood, and the flooring is 12-inch-by-24-inch variegated slate. Mosaic tiles in the backsplash resemble the colors of ocean pebbles. But the flavor of this casual, open plan isn’t entirely rustic. Stainless steel and mahogany countertops provide a sleek counterbalance to the rough-cut wood and stone, as does an open steel staircase with teak treads. The kitchen island is set on bright red casters, so it can be moved out of the way for parties. It’s a perfectly fitting space for the owner, a New Yorker who escapes to the shore to surf on weekends and likes his living environment to be sophisticated and eclectic.

Project Info

Best Kitchen in a Custom Home—less than 3,000 square feet

Entrant/ArchitectRichard Bubnowski Design, Point Pleasant, N.J.

Builder Brian M. Kidd, Manahawkin, N.J.

Interior designerSerenity Design, Ship Bottom, N.J.

About the Author

Upcoming Events

  • Protecto Wall VP Standard Installation Video

    Webinar

    Register for Free
  • How Right-Sized Plumbing Saves Money, Saves Water, and Protects Wellness

    Webinar

    Register for Free
  • Building Careers from the Ground Up: The IUPAT Floor Covering Apprenticeship and Training Program

    Webinar

    Register for Free
All Events