What’s going to be popular after modern farmhouse phases out of style?
Perhaps barndominium. The rustic style (not necessarily with metal framing) has gained in popularity for house plan sales. Some designers also speculate that more transitional styles will rise.
This new plan skirts the line between barndominium and modern. See interior views here.
The exterior presents ultra-clean lines and overall simplicity, but with subtle details that elevate the design. For example, it features several different types of siding add texture. A sleek awning over the garage breaks up the space visually, which is a good thing because this is a large four-car parking space.

Modern barndominium plan, main level. See more views at Houseplans.
You could consider this a one-and-a-half-story design, with most of the space on the first level. Here, a very open layout presents excellent flow out to the large back porch via accordion doors. A fireplace-warmed living room would make a cozy home office.
Also on this level, the primary suite opens to the laundry room.

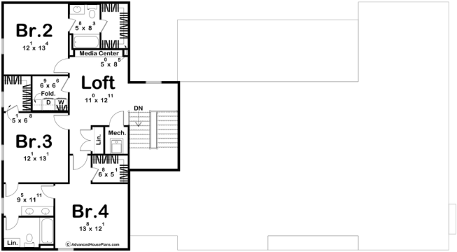
Modern barndominium plan, upper level. See more views at Houseplans.
The upper floor holds three additional bedrooms, each with a walk-in closet. Another laundry room up here simplifies chores.
If homeowners want more living space, they can finish the lower level to hold two more bedrooms and a variety of recreational spaces. See the basement layout here.