House Plan of the Week: Duplexes Deserve Curb Appeal Too

Check out this contemporary multifamily design.

1 MIN READ
Contemporary duplex plan, front exterior. See more views at Houseplans.

Contemporary duplex plan, front exterior. See more views at Houseplans.

Does anyone else feel like duplex house plans are getting a glow up lately?

We’ve been seeing lots of sleek, simple-yet-cool designs springing up. Here’s a prime example.

On the exterior, the metal roof meets vertical siding for a decidedly modern vibe that gets a bit of texture and earthiness from the stone accents on the garages. Each side gets a deep single-car garage. Not bad, considering the whole structure only measures 47 feet, 4 inches wide by 44 feet deep.

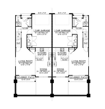
Also on the main level, each side gets a generous private patio. The kitchens sport islands that overlook living spaces.

Contemporary duplex plan, main floor plan. See more views at Houseplans.

Contemporary duplex plan, main floor plan. See more views at Houseplans.

Upstairs, each unit provides three bedrooms, including the main suite with its private bathroom that includes two sinks and a walk-in closet. Laundry is located on this floor, lending extra convenience.

Contemporary duplex plan, upper floor plan. See more views at Houseplans.

Contemporary duplex plan, upper floor plan. See more views at Houseplans.

See more duplex designs at Houseplans.

About the Author

Aurora Zeledon

Aurora Zeledon is Director, e-Commerce Marketing, Merchandising, and Content for Zonda House Plans, which includes house plan sites www.builderhouseplans.com and www.houseplans.com.
With over ten years of experience in the pre-drawn plan industry, she sorts through thousands of designs every week to choose the most interesting, innovative, and marketable house plans to spotlight in Zonda's newsletters, social media, and publications.

Upcoming Events

  • Protecto Wall VP Standard Installation Video

    Webinar

    Register for Free
  • How Right-Sized Plumbing Saves Money, Saves Water, and Protects Wellness

    Webinar

    Register for Free
  • Building Careers from the Ground Up: The IUPAT Floor Covering Apprenticeship and Training Program

    Webinar

    Register for Free
All Events