Move-up house plans need to check a lot of boxes. Is there enough storage? Enough space? Does it feel special?
This new design can answer yes to all of the above.
The exterior sports still-super-popular farmhouse styling. A front porch will never go out of style, and this one has enough room for relaxing on a spring day.
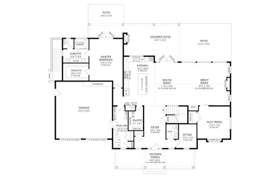
Inside, practical amenities abound. An office provides space for telecommuting, while a playroom could become a second work space for those who need it. Check out the spacious mudroom on the way in from the garage. The main suite boasts a huge walk-in closet.

Farmhouse Plan Main Level. See Details at Houseplans.com.
Upstairs, three spacious bedrooms hold family or friends.

Farmhouse Plan Upper Level. See Details at Houseplans.com.