Sometimes a very modern house plan comes along that stops you in your scrolling through a sea of farmhouses. And if it fits a narrow lot? Even better.
This brand-new house plan showcases striking curb appeal while only measuring 40 feet wide.
And there’s a cute midcentury modern twist: the carport. Lest you think that’s a relic, take a look at this collection of home plans with carports, some of them quite new.
See that glass enclosure on the right? That’s the living room.

How about the back? The other side of the living room displays just as much glass as the front. Imagine gazing at fall foliage while seated on the couch.
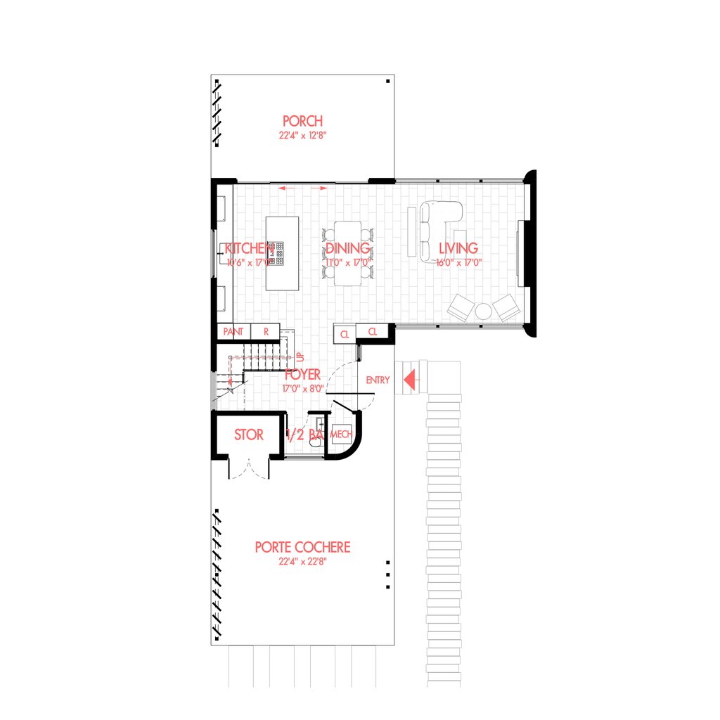
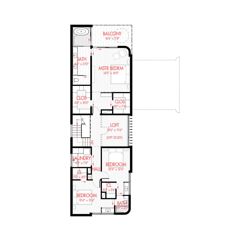
For outdoor living, homeowners can lounge on the shady porch just outside the kitchen or opt for the balcony upstairs. More on that in a bit.

Here’s a look at the floor plan. Matching the sleek feeling of the exterior, the living areas flow into one another.

Now let’s head to the second level. At the top of the stairs, a loft offers flexible space for reading or simply hanging out. And if your clients choose to have you close it off, it becomes a study.
At the front of the home, two secondary bedrooms don’t skimp on storage space, and each one gets its own sink area as part of the Jack-and-Jill bathroom. Conveniently, the laundry room sits nearby.
Meanwhile, the primary suite rests in back. Remember that balcony? It’s for the exclusive use of the homeowners. Adding to the luxurious vibe, the bathroom sports a wet room that places the tub within the shower area.
Loving this look? Find thousands of modern home designs at Houseplans.