Looking for modern house plans that fit small lots?
This unique home design from award-winning Visbeen Architects presents a creative solution. Let’s take a look at the outdoor living areas before examining the floor plans.
Check out this oasis tucked between the screened porch and the detached garage. Peaceful, no?
Modern house plan for a narrow lot, rear exterior.
Here’s another view of the back of the home. That balcony belongs to the primary suite, creating a private place to enjoy a cup of coffee.
Modern house plan for a narrow lot, screened porch and balcony.
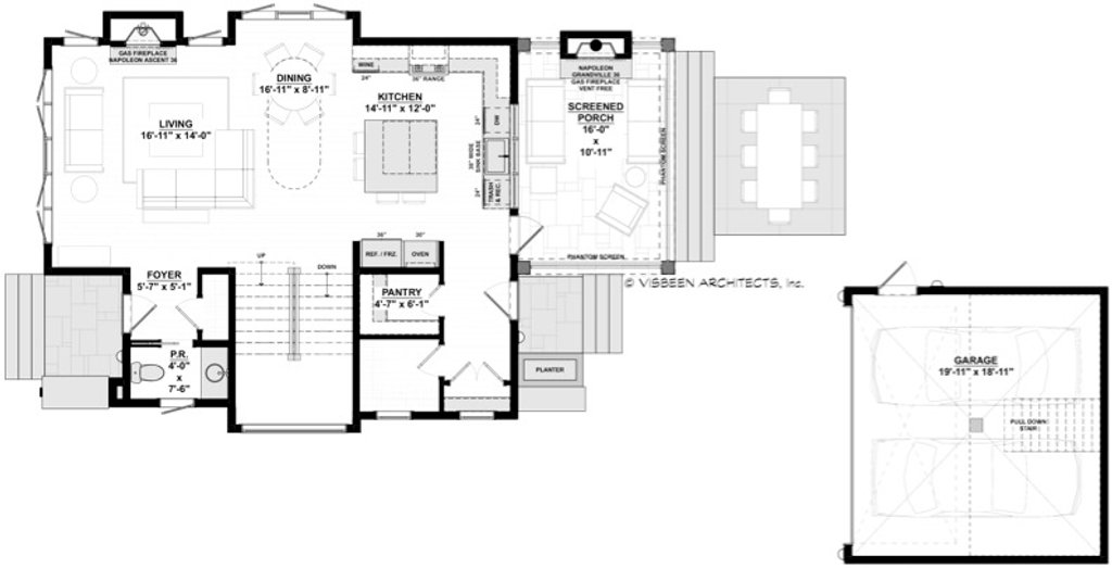
Here’s the main floor plan. Open and contemporary, the layout flows from the living room to the dining area and then into the kitchen, where a large island puts seating on two sides for easy face-to-face conversation.
Step out from here to the screened porch, where a fireplace warms up crisp nights.

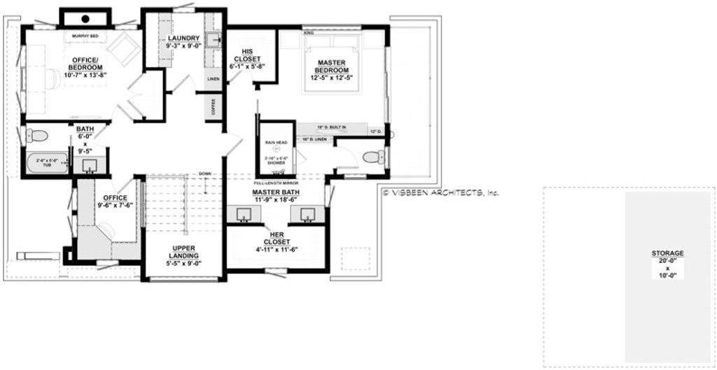
Here’s the upper level. The main suite showcases a rain shower, double vanities, two large closets, and the private balcony.
Also on this level, two office spaces provide room for a couple to work harmoniously from home. One of the rooms can easily accommodate a guest.

For homeowners who need more space, the basement can be finished to hold a large flex space, plus plenty of storage (including for wine).
