What does luxury home design look like today? It’s not about formality. Instead, think relaxed and streamlined, with lots of practical details.
This bold modern plan makes a statement with strong, clean lines and tons of windows. A variety of outdoor living areas invite homeowners to step outside and enjoy nature.
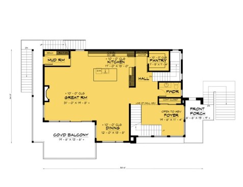
Inside, the open layout feels contemporary and relaxed. Although there is a grand foyer, you won’t find a formal living room. Instead, the great room opens to the kitchen and dining area for a seamless, informal vibe.

Modern house plan with open layout on the main level (design 1066-182 at Houseplans.com)
Upstairs, you’ll find three bedrooms (including a spacious primary suite) and a versatile office. A loft adds a bit more space for reading or relaxing. Also on this level, the laundry room makes it easy to throw in a load of clothing without trekking downstairs. Don’t miss the private balcony off the primary bedroom.

Modern house plan with balcony on the upper level (design 1066-182 at Houseplans.com)
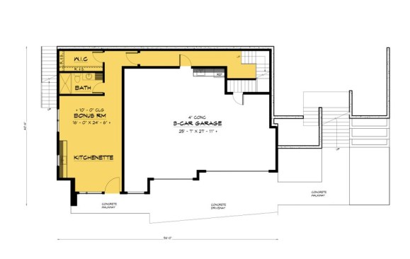
On the lower level, a kitchenette and extra space make a fun hangout spot for visitors or young adults, or maybe a private gym. A bathroom with a shower would also make this a convenient spot to rinse off after a workout.

Modern house plan with kitchenette in the lower level (design 1066-182 at Houseplans.com)
Visit houseplans.com for more luxury home designs.