
Ready to build something that isn’t a modern farmhouse? Try modern Mediterranean.
This new home design showcases unique curb appeal with decorative brackets, arched windows, and a flat roof that houses a deck. (Love a rooftop deck? Check these out.)

The elegant details continue into the open living spaces. Sliding doors open to the back covered porch and let in light. A corner pantry adds welcome storage.

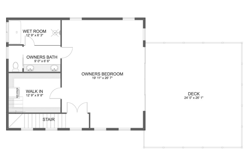
Here’s something unusual. These days, many two-story plans place the main suite on the first level. Or if it’s upstairs, it’s with secondary bedrooms. This design put the owner’s suite all by itself upstairs, where it can enjoy the view through arched windows and from the roof deck.

Now for a look at the floor plans. Here’s the first level. Note the location of the home office near the front, a bit removed from the noise of the family room.

And here’s that upstairs suite. It’s also got a wet room.