Looking for a move-up house plan that feels elegant yet effortless? Here’s a farmhouse plan with lots of photos to bring the layout to life.
On the exterior, paired porch columns draw your eye to the entryway. Meanwhile, a bonus room sits above the three-car garage to offer flexible space.
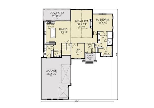
Let’s take a look at the layout. A mudroom on the way in from the garage keeps things tidy and sits fairly close to the kitchen, making it fast to transport groceries. Near the front, a den provides a place for working or hobbies. The main suite, conveniently located on this level, showcases a five-piece bathroom and a large walk-in closet.

Farmhouse plan with storage, main level. See more details at Houseplans.
Upstairs, three more bedrooms hold family and friends. Walk through the bonus room to arrive at an additional storage area.

Farmhouse plan with storage, upper level. See more details at Houseplans.