House Plan of the Week: Rooftop Deck Above the Garage

Here's an unusual home design with bold style and main level outdoor space above the garage.

1 MIN READ
Modern house plan with rooftop deck, front exterior. See details at Houseplans.com.

Modern house plan with rooftop deck, front exterior. See details at Houseplans.com.

According to the 2023 Houzz U.S. Emerging Summer Trends Report, rooftop decks, rooftop patios, and rooftop terraces are gaining popularity in searches on the platform. Unlike some outdoor living features, you don’t need a large lot to make it happen.

Here’s a new house plan, at 3,126 square feet, that offers a stylish rooftop deck.

On the main floor, the kitchen opens outside to the deck above the garage. This access makes it easy to step outside on a nice day to enjoy a meal. Down a hall and toward the back of the house, the living room flows into the dining area. Three bedrooms sit together on the right side of the home, along with an office nook.

Modern house plan with rooftop deck, main level. See details at Houseplans.com.

Modern house plan with rooftop deck, main level. See details at Houseplans.com.

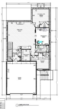
On the lower level, the garage sits in front and leads to a mudroom. A variety of recreational areas (including an exercise room) and guest spaces add versatility to this level.

Modern house plan with rooftop deck, ground level. See details at Houseplans.com.

Modern house plan with rooftop deck, ground level. See details at Houseplans.com.

Love the look? See modern plans at Houseplans.com.

About the Author

Aurora Zeledon

Aurora Zeledon is Director, e-Commerce Marketing, Merchandising, and Content for Zonda House Plans, which includes house plan sites www.builderhouseplans.com and www.houseplans.com.
With over ten years of experience in the pre-drawn plan industry, she sorts through thousands of designs every week to choose the most interesting, innovative, and marketable house plans to spotlight in Zonda's newsletters, social media, and publications.

Upcoming Events

  • Protecto Wall VP Standard Installation Video

    Webinar

    Register for Free
  • How Right-Sized Plumbing Saves Money, Saves Water, and Protects Wellness

    Webinar

    Register for Free
  • Building Careers from the Ground Up: The IUPAT Floor Covering Apprenticeship and Training Program

    Webinar

    Register for Free
All Events