House Plan of the Week: Snore-Proof Main Suite

The primary suite of this unique plan features two separate bedrooms that meet in the middle.

1 MIN READ
Simple house plan with two main bedrooms, front exterior. See more details at Houseplans.

Simple house plan with two main bedrooms, front exterior. See more details at Houseplans.

A recent article in The Washington Post explored the idea of couples sleeping apart for better rest. This new house plan presents an ideal setup for such an arrangement.

The exterior showcases rustic simplicity with a metal roof, rugged trusses, and a spacious wraparound porch. There’s no garage, but a carport around back provides parking.

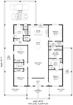
The unique part of the floor plan is the two-part main suite on the right side. A bedroom in front and another in back meet in the middle with a large closet and a two-part bathroom. The suite in front gets a tub and a large vanity, while the one in back includes a shower. This unusual layout means that each partner can find solitude and silence in their bedroom and plenty of privacy in the bathroom, but without being totally cut off from the other.

Meanwhile, two more bedrooms on the opposite side of the home share a hall bath. Note the ultra-simple footprint, which should help with costs. The open layout feels fresh and modern.

Simple house plan with two main bedrooms, floor plan. See more details at Houseplans.

Simple house plan with two main bedrooms, floor plan. See more details at Houseplans.

See more unique home designs at Houseplans.

About the Author

Aurora Zeledon

Aurora Zeledon is Director, e-Commerce Marketing, Merchandising, and Content for Zonda House Plans, which includes house plan sites www.builderhouseplans.com and www.houseplans.com.
With over ten years of experience in the pre-drawn plan industry, she sorts through thousands of designs every week to choose the most interesting, innovative, and marketable house plans to spotlight in Zonda's newsletters, social media, and publications.

Upcoming Events

  • Protecto Wall VP Standard Installation Video

    Webinar

    Register for Free
  • How Right-Sized Plumbing Saves Money, Saves Water, and Protects Wellness

    Webinar

    Register for Free
  • Building Careers from the Ground Up: The IUPAT Floor Covering Apprenticeship and Training Program

    Webinar

    Register for Free
All Events