House plans for families don’t have to have porches but around Halloween, they sure do add to the ambiance.
Here’s a new design that feels like a move-up but without the wasted space. It’s got 2,645 square feet of living space, much of that devoted to the open gathering areas like the casual kitchen.

Let’s look at the floor plan. Porches add indoor/outdoor living on three sides of the home: in front (where Halloween decorations can enliven the neighborhood), in back (just off the dining area), and on the side (connecting to a mudroom).
The main suite showcases a streamlined private bathroom with two sinks and a shower.

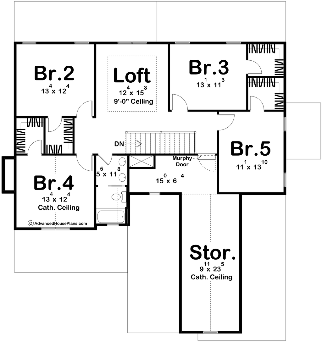
Upstairs, four additional bedrooms provide plenty of space for an active family (or anyone who needs a lot of space for visitors, hobbies, working from home, etc.). Each room sports a large walk-in closet. A loft adds more space for relaxation.
