House Plan of the Week: Ultra-Modern Tiny Home ADU

Edgy but simple? You got it.

1 MIN READ
Tiny studio ADU house plan with curb appeal, front exterior. See more images at Houseplans.

Tiny studio ADU house plan with curb appeal, front exterior. See more images at Houseplans.

Let’s keep this one simple. Actually, it’d be hard to find a floor plan that’s much simpler than this one.

It’s not unusual to see tiny house plans with modern style. But this little ADU design stands out with a bold look and just 400 square feet.

It’s basically a very attractive box. The overhang of the front wall partially defines the side patio to create some outdoor living. The wood accents stand out against the clean, stark facade.

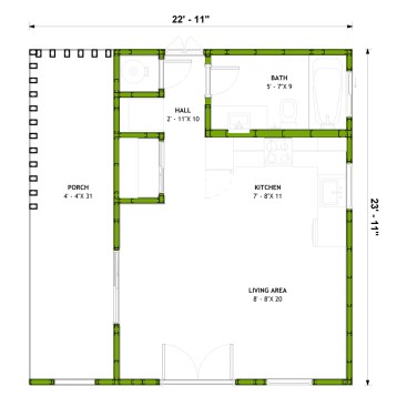
Tiny studio ADU house plan with curb appeal, floor plan. See more images at Houseplans.

Tiny studio ADU house plan with curb appeal, floor plan. See more images at Houseplans.

Inside, it’s just a simple open studio plan. The living room opens to the L-shaped kitchen, where a window over the sink provides a view. Note the surprisingly generous storage nearby—a welcome touch in such a small home.

Down the hall, a full bathroom with a tub awaits. Again, not bad for 400 square feet.

Tiny studio ADU house plan with curb appeal, framing visualization. See more images at Houseplans.

Tiny studio ADU house plan with curb appeal, framing visualization. See more images at Houseplans.

Here’s a fun fact: The plan is actually designed for building with steel, though the designer says “you can also reference it to fully build in wood.” (Explore metal house plans here.)

See more tiny home plans at Houseplans.

About the Author

Aurora Zeledon

Aurora Zeledon is Director, e-Commerce Marketing, Merchandising, and Content for Zonda House Plans, which includes house plan sites www.builderhouseplans.com and www.houseplans.com.
With over ten years of experience in the pre-drawn plan industry, she sorts through thousands of designs every week to choose the most interesting, innovative, and marketable house plans to spotlight in Zonda's newsletters, social media, and publications.

Upcoming Events

  • Protecto Wall VP Standard Installation Video

    Webinar

    Register for Free
  • How Right-Sized Plumbing Saves Money, Saves Water, and Protects Wellness

    Webinar

    Register for Free
  • Building Careers from the Ground Up: The IUPAT Floor Covering Apprenticeship and Training Program

    Webinar

    Register for Free
All Events