Here’s a starter home that doesn’t really look like a starter home.
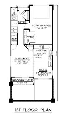
Less than 24-feet wide, this 1,565-square-foot design offers a front-facing garage for a single car and decidedly contemporary styling with vertical siding, a metal roof, and a spacious patio in back.
Plan Details
Plan: #1064-321
Square Footage: 1,565
Bedrooms: 3
Bathrooms: 2.5
Dimensions: 23’ 7” x 53’
Three bedrooms sit together upstairs, including the main suite with its private bathroom that includes two sinks. On the main floor, the layout keeps it simple with the living room flowing into the open kitchen and the dining nook. Plenty of natural light via well-placed windows ensures a bright feeling.
Given all of these budget-friendly choices, it’s not surprising to learn that the design was adapted from a multifamily plan with five units.
“The only reason I took on the project was because it was here in my hometown in a very visible area. I knew the project was on a tight budget, and I was afraid it would turn out looking like a budget project,” explains Brad Graber of Custom Home Designs. “This particular project was set up such that the typical rear of the home was facing the street. This led to the courtyard design to help build some sense of privacy for the street-facing side of the home.”

Courtesy Custom Home Designs

Courtesy Custom Home Designs
See interior views at builderhouseplans.com and explore more starter home plans at builderhouseplans.com/collection/starter-house-plans.