What’s a “garagedominium”? By now you’ve probably heard of barndominium style, which has gotten quite popular in recent years and often includes a large garage. But according to a few sites devoted to the topic, garagedominiums take it a step further with massive parking and storage facilities. Some new plans on the market certainly earn this label.
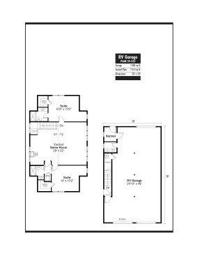
Here’s one. The first level accommodates a recreational vehicle (RV), with enough space left for tools. There’s even a kennel in the corner, next to a convenient powder bath. Upstairs, you’ll find two generous bedroom suites separated by a living space.
Rick McAlexander, president and CEO of Associated Designs, explains the intent behind this unique design.
“This garagedominium was created to accommodate a maturing family; the goal was to provide for two college-bound children the opportunity to live at home while going to college locally. With the separation of living areas, the family maintained close relationships but maintained privacy as the now four adults lived in close proximity,” he says. “It’s been a few years, and the family has very much enjoyed the arrangement, sharing plenty of quality family time while avoiding the challenges that often come with sharing living spaces. And as a bonus, [they got] a place to park the RV and store the yard equipment.”

Courtesy Associated Designs
Explore garagedominium designs at houseplans.com/collection/garagedominium-plans.