No. 10: Small is Beautiful At only 1,698 square feet, this home …
No. 10: Small is Beautiful At only 1,698 square feet, this home makes up for its small size with plenty of outdoor areas, such as a barbecue patio, lanai, front porch, and screened breezeway. For more images and information, click
here.
No. 9: Classic Mediterranean The third largest plan in the bunch…
No. 9: Classic Mediterranean The third largest plan in the bunch at 3,424 square feet, this plan caters to those looking for a luxurious layout. It offers a master suite with a view of the rear garden, a guest suite, and a rear patio. For more images and information, click
here.
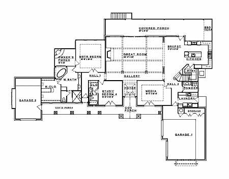
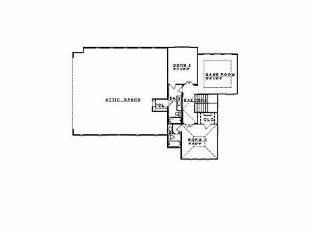
No. 8: Hill Country Fusion This plan is designed to make the mos…
No. 8: Hill Country Fusion This plan is designed to make the most of a steeply sloping lot. A wall of windows in the great room captures hillside views, while a porch stretches along the backside. At 4,185 square feet, it’s the largest plan to make it into the top 10. For more images and information, click
here.
No. 7: Full House Designed for a large family, this plan offers …
No. 7: Full House Designed for a large family, this plan offers an extensive kitchen, opening onto an informal dining area. It also offers plenty of outdoor space, with a wraparound porch as well as three additional porches, one of them screened. It comes in at 4,012 square feet. For more images and information, click
here.
No. 6: Sky High At a more modest 2,525 square feet, this plan us…
No. 6: Sky High At a more modest 2,525 square feet, this plan uses high ceilings to open the space. But even with its smaller footprint, it still squeezes in a home theater/living room, great room, and breakfast room. For more images and information, click
here.
No. 5: Craftsman Chic Square footage numbers were lower among th…
No. 5: Craftsman Chic Square footage numbers were lower among those in the top half of the list. Offering 2,156 square feet, this plan focuses on making the space it does offer sparkle, including tray ceilings, a vaulted screened porch, and walk-in closets. For more images and information, click
here.
No. 4: Country Curb Appeal An open floor plan caters to entertai…
No. 4: Country Curb Appeal An open floor plan caters to entertaining and family interaction, while fireplaces lend a cozy feel. Upstairs, the master suite features tray ceilings and a French-door entry to the master bath. All together, the plan is 2,443 square feet with four bedrooms. For more images and information, click
here.
No. 3: Party Ready Outside, this home offers rugged good looks. …
No. 3: Party Ready Outside, this home offers rugged good looks. Inside, it features a comfortable, open layout in 2,847 square feet. The rear is packed with outdoor entertainment spaces, such as a hearth-warmed lanai and barbecue porch. For more images and information, click
here.
No. 2: Comfy Charm At only 2,097 square feet, this plan packs a …
No. 2: Comfy Charm At only 2,097 square feet, this plan packs a punch. Outside, interspersed stone and wood siding give it a country flavor. Inside, cathedral ceilings give the public areas a spacious feel. For more images and information, click
here.
No. 1: Rustic Classic While this year’s No. 1 bestseller at Bu…
No. 1: Rustic Classic While this year’s No. 1 bestseller at Builder House Plans is also the second-smallest in the top 10, the home does a lot in 2,091 square feet. It offers plenty of space for gathering areas, such as the kitchen and family room, while the more-secluded master suite dazzles with a box-bayed sitting area, walk-in closets, and private deck access. For more images and information, click
here.
As part of our end-of-the-year series on trends from 2011, Builder took a look at which plans from Builder House Plans won this year’s popularity contest. What we found was that these star performers had a lot in common. For one thing, while not shockingly small, modest sizes are decidedly in fashion. Of the top 10, seven came in at less than 3,000 square feet, with Nos. 1 and 2 just a hair larger than 2,000 square feet. When it came to exterior aesthetics, all of the plans stuck to classic looks with a strong preference (eight out of 10) for side-loading garages. There was also a large showing of outdoor living spaces, from screened porches to lanais to barbecue patios to all of the above. Inside, seven of the plans were laid out on a single level—a trend likely to continue as Baby Boomers age.
Claire Easley is a senior editor at Builder.
Learn more about markets featured in this article: Greenville, SC.