Breathing new life into San Diego's Golden Hill neighborhood, K …
Breathing new life into San Diego's Golden Hill neighborhood, K Lofts introduced nine contemporary rental units to a brownfield site formerly occupied by an abandoned Circle K convenience store and a gas station.
Photo by Paul Body
Although local zoning limited the allowable density to six units…
Although local zoning limited the allowable density to six units on a 9,000 square foot lot, Segal received a building bonus and was able to bump the unit count to nine by designating one apartment as low-income.
Photo by Paul Body
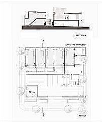
Elements of the original convenience store building (seen here) …
Elements of the original convenience store building (seen here) were salvaged and integrated into the new design. Segal estimates this adaptive reuse saved nearly $80,000 in demolition and construction costs.
Plans courtesy Jonathan Segal
Segal retained parts of the original building shell and foundati…
Segal retained parts of the original building shell and foundation, but removed the roof and added a second story. Five two-story units now stand on the footprint of the former retail structure.
Photo by Paul Body
The project was built for a modest $82 per square foot, with no …
The project was built for a modest $82 per square foot, with no government subsidies. Cost saving materials include rusted mild steel cladding (an economical alternative to Cor-Ten)…
Photo by Paul Body
…and cabinetry, hardware, and plumbing fittings from Ikea.
Photo by Paul Body
There's a sustainable component, too. Half of the project's elec…
There's a sustainable component, too. Half of the project's electricity needs are derived from rooftop photovoltaic panels. Xeriscaping in an interior courtyard minimizes water usage.
Photo by Paul Body
The units even feel luxurious. Each enjoys private outdoor space…
The units even feel luxurious. Each enjoys private outdoor space and oversized windows.
Photo by Paul Body
Served up as an alternative to other housing options in the area…
Served up as an alternative to other housing options in the area, the loft residences appear upscale, but are deceivingly affordable.
Photo by Paul Body
Residential units range in size from 850 to 1,250 square feet. T…
Residential units range in size from 850 to 1,250 square feet. The low-income unit (reserved for individuals making 50 percent of the area median income) rents for $700 per month. The market-rate units go for $1,650 to $2,300 per month.
Entrepreneur Jonathan Segal opened his architectural practice in 1990 and then promptly ditched most of his clients. Serving as his own developer and contractor, Segal has since designed, financed, and built roughly two dozen infill buildings in downtown San Diego, carving out a niche that many have aspired to emulate. Contemporary and yet budget-smart (most are built for less than $100 per square foot), his boutique projects have sparked revitalization efforts in several declining neighborhoods, adding to their eclectic appeal. It should come as no surprise that Segal’s designs skew as experimental as his business model, often blending workforce or low-income rental housing with mixed use commercial space, live/work, adaptive reuse, sustainable materials, or renewable energy systems. K Lofts is one such venture that proves that hip and affordable needn’t be mutually exclusive.