Mod Cott RADA 2010 – Custom Home 3,000 Square Feet or Less / G…
Mod Cott RADA 2010 – Custom Home 3,000 Square Feet or Less / Grand Award Architect: Mell Lawrence Architects, Austin, Texas; Builder: Classic Constructors, Marble Falls, Texas; Photography: Mell Lawrence This Texas guesthouse and weekend retreat juxtaposes rough-edged elements and polished precision. Big glass doors and an overhang of solar panels make up the front elevation.
Mell Lawrence FAIA
Raw, site-gathered juniper branches and standing-seam metal clad…
Raw, site-gathered juniper branches and standing-seam metal clad the back of the building.
Mell Lawrence FAIA
The rocky, rugged landscape directly influenced the guesthouse's…
The rocky, rugged landscape directly influenced the guesthouse's design.
Mell Lawrence FAIA
At night, a central light fixture casts shadow lines around the …
At night, a central light fixture casts shadow lines around the loft-like interiors.
Mell Lawrence FAIA
In keeping with the project's simple, elemental aesthetic, a hal…
In keeping with the project's simple, elemental aesthetic, a halved steel pipe creates a gutter connecting the roof to the rainwater tank.
Mell Lawrence FAIA
Interior fir detailng adds a warm elegance to the space.
Mell Lawrence FAIA
A metal plinth forms a small staircase landing.
Mell Lawrence FAIA
The project takes in expansive views of a lake to the south.
Jacob Termansen
The guesthouse's bath.
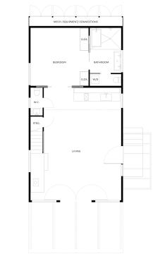
Courtesy Mell Lawrence Architects
The project's first floor plan.
Courtesy Mell Lawrence Architects
The guesthouse's bath.
Varnville, S.C., Residence CHDA 2008 – Custom Home 3,000 to 5…
Varnville, S.C., Residence CHDA 2008 – Custom Home 3,000 to 5,000 Square Feet / Merit Award Architect: Robert M. Cain, Atlanta; Builder: Brunson Construction, Hampton, S.C.; Photography: Rob Karosis This new South Carolina residence consists of three staggered pavilions inspired by the traditional Southern shotgun house.
Operable windows and high ceilings encourage natural ventilation…
Operable windows and high ceilings encourage natural ventilation in the main living area.
The extensive interior use of knotty pine-much of it reclaimed-c…
The extensive interior use of knotty pine-much of it reclaimed-creates a warm, casual look.
The home's three shotgun pavilions are staggered so that each on…
The home's three shotgun pavilions are staggered so that each one receives ample views, natural light, and breezes.
Glass-walled walkways connect the pavilions. Delicate-looking st…
Glass-walled walkways connect the pavilions. Delicate-looking steel supports for the roofs supply structural strength without adding bulk.
Paul Warchol
Pinedale, Wyo., Residence CHDA 2007 – Custom Home 3,000 to 5,0…
Pinedale, Wyo., Residence CHDA 2007 – Custom Home 3,000 to 5,000 Square Feet / Merit Award Architect: Carney Architects, Jackson, Wyo.; Builder: Chambers Design-Build, Pinedale, Wyo.; Photography: Paul Warchol Two perpendicular walls of hewn logs make up this Wyoming home's organizing spines, a nod to the regional log-house vernacular.
Paul Warchol
A shed roof translates into a sloping, wood-lined ceiling inside…
A shed roof translates into a sloping, wood-lined ceiling inside. Exposed trusses keep the scale of the main living spaces from feeling overwhelming.
Carney Architects
The floor plan.
David Lake
LC Ranch RADA 2010 – Custom Home 3,000 Square Feet or Less / …
LC Ranch RADA 2010 – Custom Home 3,000 Square Feet or Less / Merit Award Architect: Lake|Flato Architects, San Antonio; Builder: Yellowstone Traditions, Bozeman, Mont.; Photography: David Lake The major precedents for this Montana getaway were classic wooden barns and the sod houses of the Great Plains pioneers. The main house includes a public zone with a pitched roof and porches at both ends.
David Lake
David Lake, FAIA, likens the kitchen to a mess hall: "Sever…
David Lake, FAIA, likens the kitchen to a mess hall: "Several people can be in there cooking."
David Lake
Like the sleeping wing, a nearby guesthouse/garage (seen to the …
Like the sleeping wing, a nearby guesthouse/garage (seen to the left of the main house) also burrows into the land.
David Lake
The temperature of the bedrooms is moderated by the sleeping win…
The temperature of the bedrooms is moderated by the sleeping wing's sod roof.
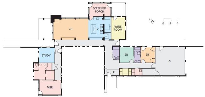
Courtesy Lake|Flato Architects
The floor plan of the main house.
David Lake
Sliding doors of weathering steel can be closed over the glass w…
Sliding doors of weathering steel can be closed over the glass walls on cold nights and during inclement weather.
David Lake
The master bedroom sits as far away from the public areas as pos…
The master bedroom sits as far away from the public areas as possible, ensuring peace and quiet.
Courtesy Lake|Flato Architects
The site plan showing the main house and guesthouse/garage.
Anice Hoachlander/Hoachlander Davis Photography
Salvage Beauty Custom Home November/December 2011 Architect: B…
Salvage Beauty Custom Home November/December 2011 Architect: Bonstra | Haresign Architects, Washington, D.C.; Builder: Timberbuilt Construction, Flint Hill, Va.; Photography: Anice Hoachlander / Hoachlander Davis Photography The Hazel River Cabin in Rappahannock County, Va., consists of a 1794 log cabin, its 1856 clapboard addition, and a larger, 1840 log cabin that was moved from another site.
Anice Hoachlander/Hoachlander Davis Photography
Cedar shakes cover the roofs of the cabins, while standing seam …
Cedar shakes cover the roofs of the cabins, while standing seam metal tops the addition and porch.
Anice Hoachlander/Hoachlander Davis Photography
A close-up of the 1794 cabin, where the logs were carefully pres…
A close-up of the 1794 cabin, where the logs were carefully preserved and re-chinked.
Anice Hoachlander/Hoachlander Davis Photography
The remaining second level of the 1840 cabin overlooks the home'…
The remaining second level of the 1840 cabin overlooks the home's main living space.
Anice Hoachlander/Hoachlander Davis Photography
New windows in the main living area maximize views of Old Rag Mo…
New windows in the main living area maximize views of Old Rag Mountain and the Hazel River.
Anice Hoachlander/Hoachlander Davis Photography
A new kitchen adds a bit of color to the interiors.
Anice Hoachlander/Hoachlander Davis Photography
A granite-floored connecting piece links the kitchen to the dini…
A granite-floored connecting piece links the kitchen to the dining room, which occupies the 1856 addition.
Anice Hoachlander/Hoachlander Davis Photography
The view from the second floor of the 1840 cabin into the upstai…
The view from the second floor of the 1840 cabin into the upstairs study.
Anice Hoachlander/Hoachlander Davis Photography
In the master bedroom, a modern built-in headboard and steel rai…
In the master bedroom, a modern built-in headboard and steel railings contrast with historic log walls.
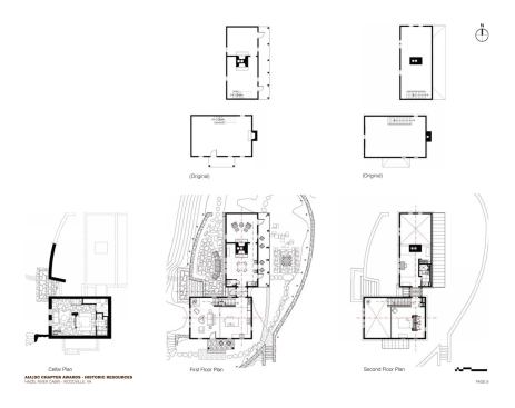
Courtesy Bonstra | Haresign Architects
"Before" and "after" floorplans of the Hazel…
"Before" and "after" floorplans of the Hazel River Cabin.
Anice Hoachlander
Anice Hoachlander
Paul Warchol
Jackson Wine Silo CHDA 2007 – Accessory Building / Grand Awar…
Jackson Wine Silo CHDA 2007 – Accessory Building / Grand Award Architect: Carney Architects, Jackson, Wyo.; Builder: Bontecou Construction, Jackson; Photography: Paul Warchol The owner of this accessory building in Jackson, Wyo., lives in a flood plain, where cellars are inadvisable. A wine “silo” keeps his vintages safely above the water table, while complementing the log construction of the adjacent studio.
Paul Warchol
A circular stairway of reclaimed wood occupies the center of the…
A circular stairway of reclaimed wood occupies the center of the structure.
Carney Architects
David Duncan Livingston
Napa Weekend House CHDA 2005 – Accessory Building / Merit Awa…
Napa Weekend House CHDA 2005 – Accessory Building / Merit Award Architect: Dahlin Group Architecture Planning, San Ramon, Calif.; Builder: R.H. Hess Development, Napa, Calif.; Photography: David Duncan Livingston The shell of this cleverly designed 996-square-foot Napa Valley, Calif., weekend home and guest house resembles the outbuildings of the region's many wineries.
David Duncan Livingston
Light and airy details ensure a subtly elegant interior where no…
Light and airy details ensure a subtly elegant interior where nothing makes a statement or stands out, says architect Mario Aiello. The detailing disappears into the background, creating an overall impression of simplicity and comfort.
Dahlin Group Architecture Planning
City meets country. High meets low. There’s a lot of energy to be captured by cross-pollenating seemingly disparate architectural strains. Low-road rural buildings, with their utilitarian forms and tough, practical materials, offer modern architects an especially rich store of imagery with which to enliven their work. This collection of projects includes a contemporary renovation that incorporates two historic log cabins and new work that draws inspiration from such rural archetypes as the ranch shed, shotgun house, barn, and farm silo.
The pioneers, farmers, and ranchers who developed these vernacular types embraced simplicity for practical, rather than aesthetic or theoretical reasons. But the result was buildings whose directness of purpose, honesty of form, and expression of structure resonate strongly with the modernist approach. The lessons they teach, about economy, durability, comfort, and modesty, are as valuable today as they ever were.