Asher at Playa Vista Envisions Aging in Place

2 MIN READ

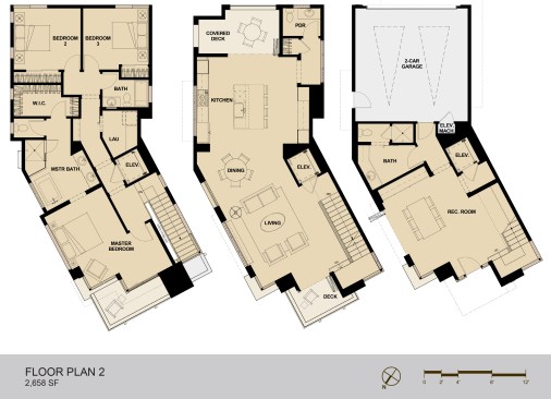
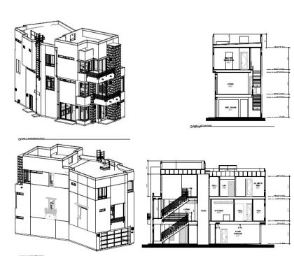
Private residential elevators typically are associated with posh Central Park apartments and upscale age-restricted communities, not production homes targeting mixed ages and demographics. But Los Angeles–based KB Home stepped out of the box, so to speak, to put them into every Asher model at Playa Vista, a master planned community in LA. In doing so, the builder acknowledged the graying of America by offering something different than an in-law suite to buyers with discretionary income.

Given today’s more vertical homes on smaller lots, elevators are a lot like universal design: they appeal not just to homeowners with bad knees but to anyone temporarily on the blink—not to mention families toting kids and furniture from floor to floor.

“The elevator appeals to the needs of a discretionary buyer and a mature buyer,” says Asher architect Robert Hidey, principal of Hidey Architects in Irvine, Calif. “Anyone would appreciate the ability to step into an elevator and go up three flights to the bedroom.” He adds, “Elevators were going to be an option, but then KB Home chose to make them standard to define their product from anyone else in this immediate market.”

Elevators aren’t the only drawing card. Given the narrow infill lots, a 21-foot-wide-by-50-foot-deep building footprint, and an 8-foot side yard, the houses bend near their center, resulting in greater wall surface uninterrupted by adjacent dwellings. On the main level, they’re canted between the kitchen and dining/living room. The land plan has two conditions: one with houses fronting a street, and the other where they face a greenbelt walkway. “If you rotate it, there is also a greater perceived distance between buildings that are opposite, either across the street or across a paseo,” Hidey explains. “You fill out that additional length of wall with as much glass as possible to bring in more daylight.”

The homes, which range from 2,400 square feet to 2,800 square feet and start around $1.7 million, aim to attract upscale homeowners with balconies, tiled showers, and solid core interior doors. One plan offers three bedrooms on the top floor and the possibility of a fourth bedroom on the ground level. Some buyers will appreciate, too, that one option is left off the table—whether to take the elevator.

About the Author

Cheryl Weber

Cheryl Weber, LEED AP, is a senior contributing editor to Custom Home and a frequent contributor to Builder. 

Upcoming Events

  • Protecto Wall VP Standard Installation Video

    Webinar

    Register for Free
  • How Right-Sized Plumbing Saves Money, Saves Water, and Protects Wellness

    Webinar

    Register for Free
  • Building Careers from the Ground Up: The IUPAT Floor Covering Apprenticeship and Training Program

    Webinar

    Register for Free
All Events