Residential Architect 2012 RADA Transformer Loft, New York Ar…
Residential Architect 2012 RADA Transformer Loft, New York Architectural Interiors / Merit
Bart Michiels
The new dressing room is lined with FSC-certified walnut and amp…
The new dressing room is lined with FSC-certified walnut and ample shelf space.
Courtesy Studio Garneau
The old kitchen was a separate space.
Courtesy Studio Garneau
The old dressing room.
Bart Michiels
The new space integrates the kitchen into the main living space.
Robert Garneau
Its corner location means the space gets ample daylight.
Bart Michiels
The unit features a simple palette of materials to convey a sens…
The unit features a simple palette of materials to convey a sense of calm and relaxation.
Bart Michiels
A large sliding door allows the owner to separate the sleeping a…
A large sliding door allows the owner to separate the sleeping area from the main living space.
Bart Michiels
The new bathroom features blue tiles and frosted glass doors.
Robert Garneau
Clever built-ins and features such as a hidden hamper help the s…
Clever built-ins and features such as a hidden hamper help the space live large.
Courtesy Office of Architecture/Push
Residential Architect 2012 RADA Tribeca Loft Residence, New Yo…
Residential Architect 2012 RADA Tribeca Loft Residence, New York Architectural Interiors / Merit
Kishore Varanasi
The architects gutted the space and left only the key structural…
The architects gutted the space and left only the key structural elements.
Kishore Varanasi
Living room, den, and kitchen are organized on the east side whe…
Living room, den, and kitchen are organized on the east side where they benefit from the natural light and views on the west side.
Kishore Varanasi
Freestanding walnut cabinetry and cantilevered wet bar help defi…
Freestanding walnut cabinetry and cantilevered wet bar help define the space.
Kishore Varanasi
Full-height sliding and accordion doors hide ample storage throu…
Full-height sliding and accordion doors hide ample storage throughout the space.
An axo of the unit shows the organization of the spaces.
Matthew Millman
Residential Architect 2009 RADA Losa Loft, San Francisco Arch…
Residential Architect 2009 RADA Losa Loft, San Francisco Architectural Interiors / Grand
Matthew Millman
Together, the Zipper and Cradle pieces define the area closest t…
Together, the Zipper and Cradle pieces define the area closest to the loft’s entry.
Matthew Millman
In the living and dining space, the Hearth converges with the Sc…
In the living and dining space, the Hearth converges with the Scrim.
Matthew Millman
A bilevel island, known as the Stage, provides some separation b…
A bilevel island, known as the Stage, provides some separation between the living room and the kitchen.
Thomas Loof
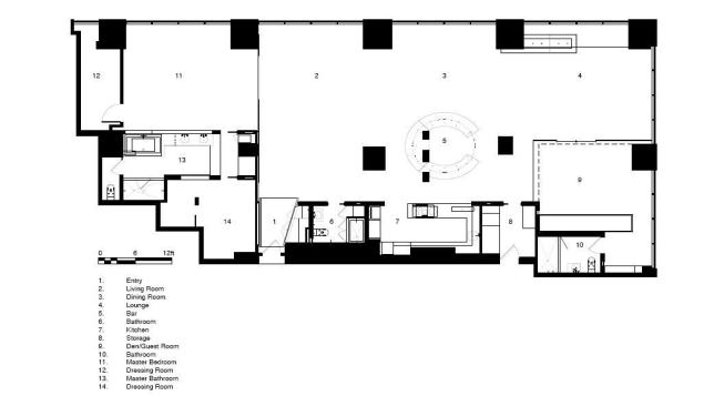
Residential Architect 2009 RADA Olympic Tower Residence, New Y…
Residential Architect 2009 RADA Olympic Tower Residence, New York City Architectural Interiors / Merit
Thomas Loof
A glass wall separates the master bedroom from the rest of the a…
A glass wall separates the master bedroom from the rest of the apartment.
Thomas Loof
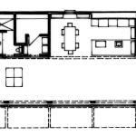
Turett Collaborative Architects
The project’s floor plan.
Erik Kvalsvik
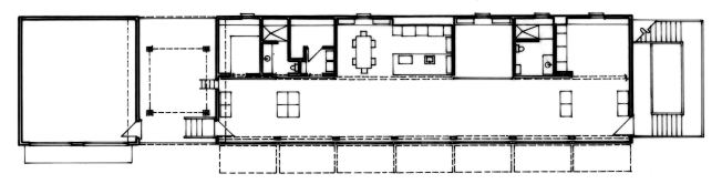
Residential Architect 2009 RADA Piedmont Farm, Howard County, …
Residential Architect 2009 RADA Piedmont Farm, Howard County, MD. Architectural Interiors / Merit
The architects continued the home's textured ceiling outside to …
The architects continued the home's textured ceiling outside to form an exterior soffit.
Benjamin Benschneider
Floor-to-ceiling wood windows maximize water views from the livi…
Floor-to-ceiling wood windows maximize water views from the living room.
Benjamin Benschneider
The kitchen feels expansive, thanks to well-placed windows and a…
The kitchen feels expansive, thanks to well-placed windows and a warm, modern material palette.
Benjamin Benschneider
Another look at the ceiling’s seamless flow from inside to out…
Another look at the ceiling’s seamless flow from inside to outside.
Benjamin Benschneider
The well-choreographed view from the den through the dining room…
The well-choreographed view from the den through the dining room and kitchen.
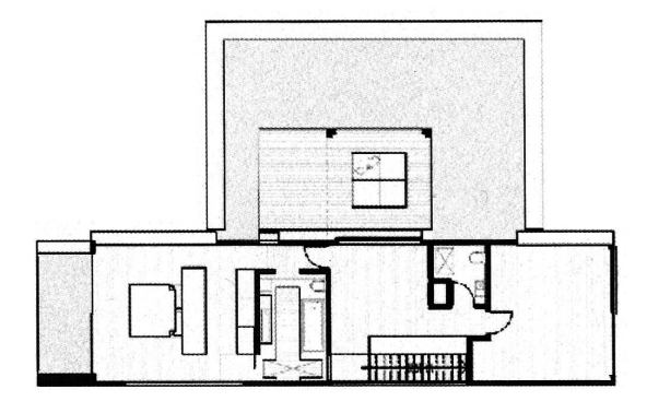
The Miller|Hull Partnership
The project’s floor plans.
The Miller|Hull Partnership
Conceptual drawings of the project’s elevations.
Torfi
Residential Architect 2008 RADA Greenfield, Los Angeles Archi…
Residential Architect 2008 RADA Greenfield, Los Angeles Architectural Interiors / Grand
Torfi
Ralf Seeburger
The large island anchoring the main living area conceals seven s…
The large island anchoring the main living area conceals seven stools; its recycled rubber cladding is a durable, kid-safe surface.
Ralf Seeburger
This highly sustainable house takes advantage of natural dayligh…
This highly sustainable house takes advantage of natural daylight, passive cooling, and recycled-content materials.
Minarc
Minarc
Dan Rockhill
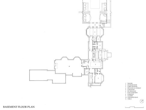
Residential Architect 2008 RADA Platform House, Rural Platte C…
Residential Architect 2008 RADA Platform House, Rural Platte County, MO. Architectural Interiors / Merit
Rockhill and Associates
Dan Rockhill
A radiant in-floor heating system picks up the slack on cloudy d…
A radiant in-floor heating system picks up the slack on cloudy days.
Halkin
Residential Architect 2008 RADA Iindustrial Loft Conversion Pr…
Residential Architect 2008 RADA Iindustrial Loft Conversion Project, Philadelphia Architectural Interiors / Merit
Paul Warchol
Residential Architect 2008 RADA Madison Square, New York City …
Residential Architect 2008 RADA Madison Square, New York City Architectural Interiors / Merit
Desai/Chia Architecture
Paul Warchol
Benjamin Benschneider
Residential Architect 2007 RADA Artist's Studio, Seattle Arch…
Residential Architect 2007 RADA Artist's Studio, Seattle Architectural Interiors / Grand
Benjamin Benschneider
Benjamin Benschneider
Benjamin Benschneider
Benjamin Benschneider
The mild steel-clad entryway of the old building, a former shoe …
The mild steel-clad entryway of the old building, a former shoe parts warehouse, blends with the transitional neighborhood.
Benjamin Benschneider
The movable table, inspired by the work of George Nakashima, was…
The movable table, inspired by the work of George Nakashima, was center-cut from an old-growth tree that died naturally and retains the tree’s contours.
Benjamin Benschneider
Paul Warchol
Residential Architect 2006 RADA Cooper Square, New York City …
Residential Architect 2006 RADA Cooper Square, New York City Architectural Interiors / Grand
Paul Warchol
The architects anchored the loft spatially with two wood and gla…
The architects anchored the loft spatially with two wood and glass cores that house the baths and a home office.
Courtesy Desai/Chia Architecture
Paul Warchol
Although curb appeal is the favorite buzz phrase of real estate agents, it’s often a home’s interiors that matter most to occupants. The way various rooms feel, how they function, how they’re connected, spatial flow, and quality of light are all important factors when designing either large airy public areas or intimate retreats. The clients’ program often determines a floor plan layout, but once the plan is set, it’s the architectural detailing and finishes along with furniture and furnishing choices that create the atmosphere and quality of those rooms.
This collection of past Residential Architect Design Award winners in the architectural interiors category demonstrates what a big difference architects and designers make in creating appealing, livable, even joyful spaces. These lofts, apartments, renovated single-family structures, and even a few new houses were all recognized for their thoughtfully planned and finished interiors. The judges were won over by material choices for walls, ceilings, and floors that generate specific moods, glazing arrangements that bring natural light and ventilation deep into an interior, trim or lack thereof that defines areas, and flexible partitions or convertible built-ins that transform a cozy nook into a wide-open party space. Stephen Muse, FAIA, succinctly sums up the importance of good interior architecture and design. “The idea is to make the spaces similar enough to hold together,” he says, “but different enough that you have reason to move from room to room.”