Michael Moran
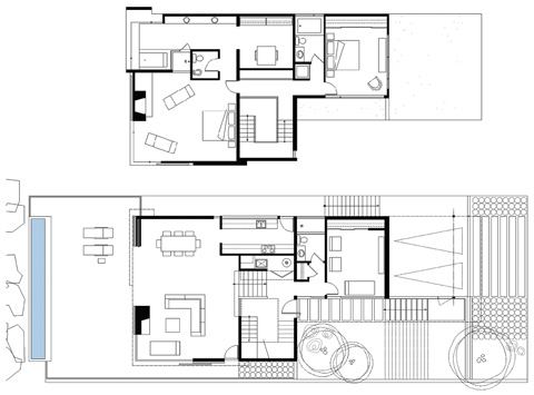
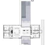
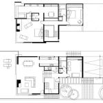
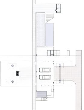
2012 rada custom / more than 3,000 square feet / merit bates m… 2012 rada custom / more than 3,000 square feet / merit bates masi + architects This interpretation of a traditional beach house captured the judges’ attention, as did its exquisite siting on a gentle hill. The materials marry well with Montauk, but their articulation and detailing offer surprises, says Paul Masi, AIA, LEED AP, referring to the weathered oak ceilings, sawn-stone walls, and tapered wood slats that modulate light and views. “We took coloring clues from weather-beaten objects we found on top of the hill,” he says. “As the house ages it becomes another one of those objects.”
Michael Moran
2012 rada custom / more than 3,000 square feet / merit bates m… 2012 rada custom / more than 3,000 square feet / merit bates masi + architects
Michael Moran
2012 rada custom / more than 3,000 square feet / merit bates m… 2012 rada custom / more than 3,000 square feet / merit bates masi + architects
Michael Moran
2012 rada custom / more than 3,000 square feet / merit bates m… 2012 rada custom / more than 3,000 square feet / merit bates masi + architects
Michael Moran
2012 rada custom / more than 3,000 square feet / merit bates m… 2012 rada custom / more than 3,000 square feet / merit bates masi + architects
Michael Moran
2012 rada custom / more than 3,000 square feet / merit bates m… 2012 rada custom / more than 3,000 square feet / merit bates masi + architects
Michael Moran
2012 rada custom / more than 3,000 square feet / merit bates m… 2012 rada custom / more than 3,000 square feet / merit bates masi + architects
Michael Moran
2012 rada custom / more than 3,000 square feet / merit bates m… 2012 rada custom / more than 3,000 square feet / merit bates masi + architects
Michael Moran
2012 rada custom / more than 3,000 square feet / merit bates m… 2012 rada custom / more than 3,000 square feet / merit bates masi + architects
Michael Moran
2012 rada custom / more than 3,000 square feet / merit bates m… 2012 rada custom / more than 3,000 square feet / merit bates masi + architects
Michael Moran
2012 rada custom / more than 3,000 square feet / merit bates m… 2012 rada custom / more than 3,000 square feet / merit bates masi + architects
Courtesy Bates Masi + Architects
2012 rada custom / more than 3,000 square feet / merit bates m… 2012 rada custom / more than 3,000 square feet / merit bates masi + architects
Michael Moran
2012 rada custom / more than 3,000 square feet / merit bates m… 2012 rada custom / more than 3,000 square feet / merit bates masi + architects
Courtesy Olson Kundig Architects
2011 rada custom / more than 3,000 square feet / grand olson k… 2011 rada custom / more than 3,000 square feet / grand olson kundig architects When architect Tom Kundig, FAIA, sat down to design this Hawaii beach house, he faced a dual challenge. The owner had asked him to make the project as sturdy and low-maintenance as possible, because it would have to weather strong storms on its waterfront site. At the same time, the local climate is often mild, so Kundig wanted to open the home to the outdoors as much as he could. He decided to take advantage of abundant natural breezes by strategically placing openings in the home’s corrugated metal roof. Rather than blowing into the house, trade winds sweep over the roof, creating a cooling vacuum that pulls air through the interiors.
Benjamin Benschneider
2011 rada custom / more than 3,000 square feet / grand olson k… 2011 rada custom / more than 3,000 square feet / grand olson kundig architects
Benjamin Benschneider
2011 rada custom / more than 3,000 square feet / grand olson k… 2011 rada custom / more than 3,000 square feet / grand olson kundig architects
Benjamin Benschneider
2011 rada custom / more than 3,000 square feet / grand olson k… 2011 rada custom / more than 3,000 square feet / grand olson kundig architects
Benjamin Benschneider
2011 rada custom / more than 3,000 square feet / grand olson k… 2011 rada custom / more than 3,000 square feet / grand olson kundig architects
Benjamin Benschneider
2011 rada custom / more than 3,000 square feet / grand olson k… 2011 rada custom / more than 3,000 square feet / grand olson kundig architects
Simon Watson
2011 rada custom / more than 3,000 square feet / grand olson k… 2011 rada custom / more than 3,000 square feet / grand olson kundig architects
Jeff Heatley
2008 rada custom / 3,500 square feet or less / grand… 2008 rada custom / 3,500 square feet or less / grand stelle architects Fred Stelle, AIA, has boldly done what few architects dare to do—he's designed a house that plays second fiddle to its Long Island, N.Y., waterfront site. Seeking to capture views to the north and crucial natural light to the south, Stelle created a 90-foot-long glass box. The building's core, where the kitchen lies, opens up, transforming it and two adjacent decks into an outdoor room. And before they even reach such pleasures, guests must get out of their cars at a distance and follow a boardwalk (anchored with steel rods to withstand regular flooding) to the house. “In these waterfront sites, it's not only about trying to intervene as little as possible, but also about capturing the spirit of the place,” says Stelle, a veteran of building on Long Island.
Jeff Heatley
2008 rada custom / 3,500 square feet or less / grand… 2008 rada custom / 3,500 square feet or less / grand stelle architects
Stelle Architects
2008 rada custom / 3,500 square feet or less / grand… 2008 rada custom / 3,500 square feet or less / grand stelle architects
Stelle Architects
2008 rada custom / 3,500 square feet or less / grand… 2008 rada custom / 3,500 square feet or less / grand stelle architects
Jeff Heatley
2008 rada custom / 3,500 square feet or less / grand… 2008 rada custom / 3,500 square feet or less / grand stelle architects
Jeff Heatley
2008 rada custom / 3,500 square feet or less / grand… 2008 rada custom / 3,500 square feet or less / grand stelle architects
Jeff Heatley
2008 rada custom / 3,500 square feet or less / grand… 2008 rada custom / 3,500 square feet or less / grand stelle architects
Jeff Heatley
2008 rada custom / 3,500 square feet or less / grand… 2008 rada custom / 3,500 square feet or less / grand stelle architects
residential architect, sept/oct 2007 mussel shoals house, ventu… residential architect, sept/oct 2007 mussel shoals house, ventura, calif. designARC Dion McCarthy and Mark D. Kirkhart principals at L.A.'s DesignARC liken the overall scheme for this beach house to a coconut. “It has a rough exterior that stands up to the elements, but the interior is soft,” McCarthy says. Steel-troweled stucco and cold-rolled steel make up the home's shell. The salty ocean air quickly rusted the steel and drew the lime out of the stucco to form a weathered patina. “We liked playing with the site's impact on the design via those natural forces,” he adds. For all its serenity, the house is tough enough to handle both stormy weather and the sometimes-prying eyes of passing surfers. Sliding louvers and storm panels enable the owners to completely close it up when they leave for the week, ensuring safety and privacy.
residential architect, sept/oct 2007 mussel shoals house, ventu… residential architect, sept/oct 2007 mussel shoals house, ventura, calif. designARC
residential architect, sept/oct 2007 mussel shoals house, ventu… residential architect, sept/oct 2007 mussel shoals house, ventura, calif. designARC
residential architect, sept/oct 2007 mussel shoals house, ventu… residential architect, sept/oct 2007 mussel shoals house, ventura, calif. designARC
residential architect, sept/oct 2007 mussel shoals house, ventu… residential architect, sept/oct 2007 mussel shoals house, ventura, calif. designARC
residential architect, sept/oct 2007 mussel shoals house, ventu… residential architect, sept/oct 2007 mussel shoals house, ventura, calif. designARC
Steven Brooke Studios
residential architect, july 2007 sarasota serene guy peterson,… residential architect, july 2007 sarasota serene guy peterson, office for architecture Sarasota, Fla.-based architect, Guy Peterson uses a classic vocabulary of concrete and steel construction, floating overhangs that provide passive heating and cooling, and direct indoor-outdoor relationships that suit this near-tropical climate. Building on barrier islands or seaward of Florida's Coastal Construction Control Line adds another layer of design constraints. For example, homes must be built above the wave crest of a 100-year storm, which can be 19 feet above sea level in some zones, and must limit light emissions and glare to protect nesting sea turtles. The architect uses those contraints to make his designs bold, but fitting their setting. “Architecture should make you think about your environment,” says Peterson. “I'd rather have someone not like my work than not notice it.”
Steven Brooke Studios
residential architect, july 2007 sarasota serene guy peterson,… residential architect, july 2007 sarasota serene guy peterson, office for architecture
Steven Brooke Studios
residential architect, july 2007 sarasota serene guy peterson,… residential architect, july 2007 sarasota serene guy peterson, office for architecture
Eric Roth
EcoHome Design Awards, Summer 2010 Grand Award ZeroEnergy Desi… EcoHome Design Awards, Summer 2010 Grand Award ZeroEnergy Design Sun, sea, and family gatherings draw 20-plus lucky folks to this striking home overlooking Cape Cod Bay. Those appealing elements also presented the biggest challenges for architect Stephanie Horowitz and designer Ben Uyeda of ZeroEnergy Design. “Extreme fluctuation in occupancy was the starting point for our entire design,” Horowitz explains.Architecturally, a stand-alone foyer pushes apart the plan’s two distinct volumes and provides a physical barrier that allows the six-bedroom “sleeping bar” to be shut down most of the year.
Eric Roth
EcoHome Design Awards, Summer 2010 Grand Award ZeroEnergy Desi… EcoHome Design Awards, Summer 2010 Grand Award ZeroEnergy Design On this sunny bluff overlooking Cape Cod Bay, 11.7 kW of solar panels on the south-facing roof gather much of the home's required energy.
Eric Roth
EcoHome Design Awards, Summer 2010 Grand Award ZeroEnergy Desi… EcoHome Design Awards, Summer 2010 Grand Award ZeroEnergy Design
Eric Roth
EcoHome Design Awards, Summer 2010 Grand Award ZeroEnergy Desi… EcoHome Design Awards, Summer 2010 Grand Award ZeroEnergy Design
Eric Roth
EcoHome Design Awards, Summer 2010 Grand Award ZeroEnergy Desi… EcoHome Design Awards, Summer 2010 Grand Award ZeroEnergy Design
Eric Roth
EcoHome Design Awards, Summer 2010 Grand Award ZeroEnergy Desi… EcoHome Design Awards, Summer 2010 Grand Award ZeroEnergy Design
Eric Roth
EcoHome Design Awards, Summer 2010 Grand Award ZeroEnergy Desi… EcoHome Design Awards, Summer 2010 Grand Award ZeroEnergy Design
Eric Roth
EcoHome Design Awards, Summer 2010 Grand Award ZeroEnergy Desi… EcoHome Design Awards, Summer 2010 Grand Award ZeroEnergy Design
Eric Roth
EcoHome Design Awards, Summer 2010 Grand Award ZeroEnergy Desi… EcoHome Design Awards, Summer 2010 Grand Award ZeroEnergy Design
EcoHome Design Awards, Summer 2010 Grand Award ZeroEnergy Desi… EcoHome Design Awards, Summer 2010 Grand Award ZeroEnergy Design
EcoHome Design Awards, Summer 2010 Grand Award ZeroEnergy Desi… EcoHome Design Awards, Summer 2010 Grand Award ZeroEnergy Design
George Cott/Chroma Inc.
CUSTOM HOME, March 2004 Beach Treat Cooper Johnson Smith Whe… CUSTOM HOME, March 2004 Beach Treat Cooper Johnson Smith Whether it's owner-occupied or rented out, this Pass-A-Grille, Fla., home must be able to withstand tropical storms, hurricanes, and the rigors of everyday beach weather. Builder Rick Worley constructed it atop underground pilings of wood encased in concrete.The building's lower level consists of concrete and masonry, with breakaway walls of concrete block to let storm water run right under the house. Continuous steel rods run up from the concrete base through the wood-framed main and second floors, pinning the structure to its site.
George Cott/Chroma Inc.
CUSTOM HOME, March 2004 Beach Treat Cooper Johnson Smith
George Cott/Chroma Inc.
CUSTOM HOME, March 2004 Beach Treat Cooper Johnson Smith
Cooper Johnson Smith
CUSTOM HOME, March 2004 Beach Treat Cooper Johnson Smith
Cooper Johnson Smith
CUSTOM HOME, March 2004 Beach Treat Cooper Johnson Smith
JD Peterson
2004 CHDA Custom Home, 3,000 to 5,000 Square Feet / Merit Award… 2004 CHDA Custom Home, 3,000 to 5,000 Square Feet / Merit Award Fisher-Friedman Associates Each new house in this beach community just north of San Francisco works hard to satisfy a myriad of safety and building codes. FEMA regulations require homes to be lifted several feet off the ground in case of flooding; paradoxically, the local homeowners' association enforces a strict height limit. Foundations and framing must also meet strict earthquake standards. “At Sea Drift you can't have a two-story house, so there was a 9- to 10-foot envelope between the floor and the roof to design in,” says architect Randy Friedman. “You can do pop-up roofs, so we did a barrel vault over the living and dining rooms and the study.”
JD Peterson
2004 CHDA Custom Home, 3,000 to 5,000 Square Feet / Merit Award… 2004 CHDA Custom Home, 3,000 to 5,000 Square Feet / Merit Award Fisher-Friedman Associates
2004 CHDA Custom Home, 3,000 to 5,000 Square Feet / Merit Award… 2004 CHDA Custom Home, 3,000 to 5,000 Square Feet / Merit Award Fisher-Friedman Associates
The allure of living within sight of a watery horizon and the sound of rhythmic waves appeals to almost everyone. But the cost of obtaining a slice of seaside land and the challenges of designing for such a demanding environment up the ante for the architect and client alike. And how do you tread the line between luxury living and the relaxed vibe of the beach bum lifestyle?
The designs seen in the accompanying slideshow achieve that tricky balance and more. Living next to the ocean means building durable structures to resist storms, pervasive humidity, and corrosive salt air, and the best of these efforts also maintain a graceful stance that’s respectful of their delicate sites. Sturdy exterior materials reflect sandy, rocky, or even concrete ocean-front surroundings and cool, sleek interior finishes offer respite from sun and wind. Floor plans optimize outdoor connections with grand openings, but the houses are also often designed to completely close up when owners are away or when hurricane season hits. And although designs are as varied as the locales, all of these beach houses let nature’s architecture take top billing.