Residential

Chattanooga Street Duplex

San Francisco

1 MIN READ

ARCHITECTS LISE DE Vito and Jim Zack played all the key roles in this urban infill project. Not only did they design the duplex, the husband and wife team also acted as contractor and client, keeping half the space for their own use.

The challenge the couple set for themselves was to design an obviously modern building that would still blend in with the Victorian character of the neighborhood. To achieve that goal, they maintained the same scale, massing, and materials as the surrounding homes but repurposed the ingredients in a more contemporary manner.

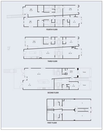
The most dramatic feature of the project is a central stair fabricated from steel plate and acrylic. A party wall, angled from front to back, creates further interest by dividing the building envelope into two trapezoidal spaces, each with one end wide and the other narrow. This configuration gives each unit equal access to the natural amenities of light, air, and views.

Category: Urban infill project involving a single housing type; Entrant/Builder/Developer/Architect: Zack/de Vito Architecture, San Francisco; Landscape architect: Randy Theume Design, San Francisco

About the Author

Upcoming Events

  • Protecto Wall VP Standard Installation Video

    Webinar

    Register for Free
  • How Right-Sized Plumbing Saves Money, Saves Water, and Protects Wellness

    Webinar

    Register for Free
  • Building Careers from the Ground Up: The IUPAT Floor Covering Apprenticeship and Training Program

    Webinar

    Register for Free
All Events