Craig Kuhner
Architect Edward Baum couldn’t find affordable housing close t… Architect Edward Baum couldn’t find affordable housing close to downtown Dallas when he was teaching architecture there, so he designed and built two duplexes on suburban lots. Baum was influenced by the California case study houses to design simple, elegant houses that can be duplicated in various locations.
Craig Kuhner
When closed, the garage doors provide security and privacy as pa… When closed, the garage doors provide security and privacy as part of a contextual yet modern façade. Once open, however, the crushed rock parking pad becomes a public gathering space with a whimsical parasol roof and an open side wall facing an ivy-covered fence.
Craig Kuhner
“The first sale went to a couple where the wife had early symp… “The first sale went to a couple where the wife had early symptoms of MS,” Baum shares. “They wanted the house because it’s completely accessible—not even a step for the front door. I didn’t think about that at all during design, but it was very satisfying for me.”
Craig Kuhner
Interiors are divided by a secluded courtyard into two equal mod… Interiors are divided by a secluded courtyard into two equal modules. The front module is living, dining, and the kitchen.
Craig Kuhner
The kitchen floats between two counters with top cabinets framin… The kitchen floats between two counters with top cabinets framing views through the garage as well as buffering the inside from curious passersby.
Craig Kuhner
All of the storage in the house is along the party wall. Baum le… All of the storage in the house is along the party wall. Baum left the storage modules empty, but installed tracking for closet systems. “We used that as a special sales feature,” he explains, “because people could customize their storage for anything from bicycles to clothes to file cabinets.”
Craig Kuhner
The back module contains two bedrooms and two baths. Long, back-… The back module contains two bedrooms and two baths. Long, back-to-back bathrooms provide ample storage and block sound between the two bedrooms.
Craig Kuhner
The bedroom abutting the interior court easily flexes for use as… The bedroom abutting the interior court easily flexes for use as a home office. “I used the second bedroom as my office and with the garage door open could see through to the street with my neighbors walking by, the ice cream man, and kids on bikes,” Baum says. “It was great fun.”
Craig Kuhner
Opening the garage door transforms the car court into a street-f… Opening the garage door transforms the car court into a street-facing outdoor space. An oversized “front porch” is how Baum conceived it. Placing the kitchen just inside the front door makes it easy to grab food or drink and head outside to the covered court. “Even when it rains,” Baum explains, “the sound is great on the metal roof where rigid insulation means that each drop makes a gentle thud.”
Courtesy Edward M. Baum
Each unit is only 1,660 square feet, but Baum speced the HVAC as… Each unit is only 1,660 square feet, but Baum speced the HVAC as rooftop units along with tankless water heaters right next to each bathroom, so none of the interior space is wasted on mechanical or ductwork except a central cylinder. Plus, all of the systems are accessible from the outside. “The money I spent on the equipment was saved on square footage inside,” Baum adds.
Courtesy Edward M. Baum
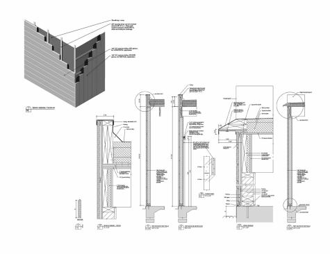
Plans and sections show the simplicity and flexibility of the de… Plans and sections show the simplicity and flexibility of the design.
Courtesy Edward M. Baum
The reclaimed cypress siding was installed as a rainscreen syste… The reclaimed cypress siding was installed as a rainscreen system. The planks are placed in both horizontal and vertical positions to provide texture and contrast.
Craig Kuhner
High clerestory windows offer abundant natural light and allow h… High clerestory windows offer abundant natural light and allow homeowners to still see treetops and sky even if they install drapes on the windows. The clerestories along with window walls facing an interior courtyard means the view is created by the house. “The idea being that you could put these houses almost anywhere and still maximize the site and views,” Baum says.
Craig Kuhner
Baum created an inexpensive but effective shading system over th… Baum created an inexpensive but effective shading system over the courtyard using agricultural shade cloth held in place by Unistrut channels. Stainless steel cables run between the channels to support the cloth. Baum reports that “the shade cloth filters 90% of the direct sun and allows for large areas of glass in the design without appreciable solar load.”