2016 Greenbuild KB Home ProjeKt

Future-Proofing the American Dream

Housing of the future must provide affordable, sustainable, and adaptable shelter to the masses

8 MIN READ

Owning a home has long been a big part of the American Dream. Obtaining that dream means having a place of sanctuary and security as well as shelter. What that house looks like and how it functions is changing to accommodate different family make-ups, population and culture shifts toward denser more integrated communities, and increasingly extreme weather patterns. Tomorrow’s best housing solution isn’t all about high-tech systems, complex building techniques, or Jetson-esque designs, however. According to experts, educators, and experimenters in the residential design and construction industry many solutions for building houses for the future involve revisiting what worked before. Combining historic research with new innovations is what will produce the best housing. Byron J. Mouton, Tulane architecture professor and founder of BILD Design sums it up: “The future is going to depend greatly on an understanding of the past.”

Looking to the Past for an Affordable Future


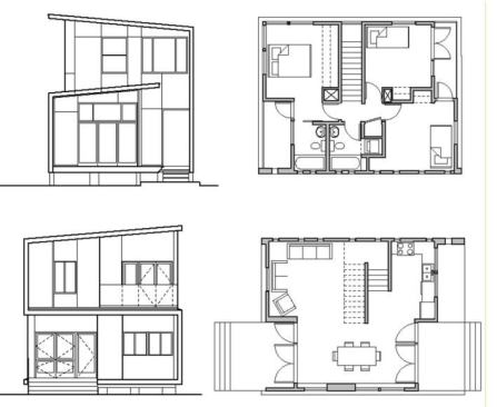
Credits: Build 3

Architect/Builder: URBANbuild, New Orleans
Design/Build Team: URBANbuild directors: Byron Mouton, AIA; Sam Richards; Emilie Taylor
Students: Christina Alvarado-Suarez, Adriana Camacho, Ian Daniels, Amarit Dulyapaibul, Nik Haak,Chris Halbrooks, Cassandra Howard, Kimberly Lewis, Caroline Lossack, Alex Mangimelli, Nicole Magnellia, Eric Mcclam, Scott Mucci, Casey Roccanova, Amanda Rosen, Carter Scott, Steve Smith, Lori Storm
Developer: Neighborhood Housing Services of New Orleans


“Prototypic examples that can be replicated by the common builder with little education” is Mouton’s prediction of what the future holds for housing that’s both affordable and approachable. “That’s what the Eichler houses did and that’s what we’re trying to do,” he adds. URBANbuild is Tulane’s student design/build program that Mouton runs, where he and his students often discuss what houses should deliver now and in coming years.

URBANbuild’s houses, such as Build 3, are forward-thinking and sturdy, but built inexpensively and quickly. They employ high-tech building materials, but everything can be trucked to the site and manipulated by hand. Common-sense features like operable windows, porches, and ceiling fans offer homeowners temperature control that’s practically free. Mouton says his clients want simpler interaction with their houses: “There’s a desire and need for people to run their homes more passively.”

Sheila Kennedy, principal of Boston-based Kennedy & Violich Architecture (KVA), also looks to former trendsetters as motivation for her experimental work in residential design. The architect surveys iconic houses and household items to find new ways of using “old” products or materials. The firm’s Soft House prototype transforms something as familiar as a curtain into multipurpose, high-tech solar energy gathering and distribution system that also does the customary jobs of a curtain—shading, insulating, partitioning, and providing privacy. “[Walter] Gropius and others have provided built examples and created entire communities to test new ways of living,” Kennedy says. “Glass walls may not be our future, but I like how Nuetra and Schindler experimented with lightweight materials and new methods of construction—that’s inspiring.”

Building Sustainability for Healthy, Resilient Houses


Credits: Cellophane House

Architect/Builder/Engineer: Kieran Timberlake Architects, Philadelphia; Size: 1,800 square feet


“We shouldn’t be turning out houses that aren’t sustainable,” declares Timberlake, principal of Philadelphia-based Kieran Timberlake, University of Pennsylvania professor, and Board of the National Institute of Building Sciences appointee. “For us that means reducing energy and water costs and usage over the life-cycle of the house. It’s about operational sustainability.” There are myriad statistics showing that green, sustainable, high-performance—whatever you want to call it—building is here to stay. Codes are being updated to enforce it, but beyond regulations homeowners demand lower energy costs, non-toxic interior environments, and houses built to survive disasters.

Mouton feels that density is quickly becoming one aspect of green building that everyone needs to figure out. Most of his entry-level clients are young professionals and families wanting to move back into urban communities. He describes a collective desire among all types of homeowners, however, who are looking to build or renovate houses in older, established neighborhoods. This requires designers and builders to incorporate durable, flexible building techniques. Advnanced, energy-efficient construction methods like pre-panelized wall systems aren’t yet entirely cost effective according to Mouton, but he believes they will be once builders learn become comfortable with using them.

“Obviously we need to address climate change and generating clean energy is a good step forward,” Kennedy states, backing up Timberlake’s opinion. Kennedy is so passionate about developing sustainable, affordable, and adaptable building solutions that a division of her firm called MATx, is devoted solely to research. It was through MATx that KVA designed Soft House as single-family model intended to be replicated for mass markets.

Kennedy describes Soft House as a hybrid because it gets energy both from traditional power sources as well as textile solar cells. “We kept the appliances and everything that is AC on the grid,” Kennedy explains, “and the curtain track is pure DC to power plug-n-play electronics that are already DC like T.V.s, laptops, tablets, and mobile phones.”

The Soft House design won a renowned building competition called International BauAustellung, which allowed a version of it to be built in Hamburg, Germany. That working prototype, completed in March 2013, is a set of four live/work row houses that feature the firm’s textile solar cells while also meeting Passive House standards. Monitoring over the past year has shown that an average of 15% of the project’s energy comes from KVA’s solar system.

“Many people are wowed by the Soft House technical innovations,” Kennedy says, “but for me the most interesting part is how do we make a low-carbon lifestyle beautiful and appealing—something people want to embrace.” Working toward carbon neutrality also lowered costs. Soft House is a wood structure. KVA prefers building with wood—even for multifamily–as a truly renewable material with no embodied energy. “We as an industry need to examine embodied energy,” Kennedy asserts. “America is overbuilt…we often bring together dozens of chemical components and materials that produce a trail of carbon emission before they even get to your house.”

Adapting a Global Paradigm to Regional Demands


Credits: Soft House

Architect: Kennedy & Violich Architecture, Boston
Design Team: Sheila Kennedy AIA, Principal; Frano Violich FAIA , Principal; Veit Kugel, Dipl Ing, Senior Associate Kyle Altman, Jeremy Burke, Stephen Clipp, Iman Fayyad, Patricia Gruits, Katherine Heinrich, Heather Micka-Smith, Chris Popa, Shevy Rockcastle, Phillip Seaton, Alex Shelly, Nyima Smith, Sean Tang, Diana Tomova, Sasa Zivkovic
Developers (IBA): IBA Hamburg GmbH; PATRIZIA Projektentwicklung GmbH
Site Supervision Architects: 360grad+ architekten
Landscape Architects: G2 Landschaft
Structural Engineer: Knippers Helbig Advanced Engineering
Climate Planning: Steinbeis Forschungsinstitut für Solare und Zukunftsfähige Thermische Energiesysteme
Heating, Ventilation & Mechanical Engineers: Buro Happold
Resources: Global Solar Energy, Inc; Svensson Global, AG; Philips Color Kinetics Headquarters; Philips Eindhoven Lighting; Automatic Devices Company, Inc.; L-tronics, Inc.; Holzbau Merkle; Textilbau Gmbh


The automotive industry is often cited as the forerunner of cost-effective mass production. Only in the past several years, however, have car manufacturers been able to produce specific models with global appeal. In fact, iPhones aside, very few industries have come up with a one-size-fits-all product, and especially not housing. “We’ve really been trying to devise a worldwide, affordable, sustainable housing type,” Timberlake explains. “We’re trying to find the right chassis for the structure of the house as well as the right wall and finish applications, but still give choice,” he adds. “That’s where big builders, urban developers, and especially architects have missed the mark.”

New technologies like computer-aided design, parametric software, building information modeling, biomimicry, 3D printers, nanotechnology, panelized and engineered building materials, and other emerging methods are making it possible to replicate a global housing typology but with variations. Advanced technologies afford the ability to adapt a stock formula to fit local climate, demographics, and homeowner preferences. A front porch in the south, super insulation in the northeast, or extensive overhangs in the southwest. “The real driver to generate housing appealing to the marketplace,” Timberlake ventures, “is merging sustainable practices, affordable construction, and a long life cycle with the ability to repetitively respond to regional market influences with in a very short period of time.”

Mouton offers a similar viewpoint adding that whatever our future housing solution is, it has to be buildable by almost anyone. “Use common materials and a common labor force, but integrate new technology into that model,” he instructs. “Recognize the limits of a regional labor force, but still push the envelope.”

The way people live also is changing, so adaptability must apply to interior configuration as well. One room might serve as a home office, guest room, nursery, playroom, TV area, or hobby space and it might have to function as all of these simultaneously. Multigenerational households, single homeowners, migrations into urban communities, co-housing, and aging in place are all trends requiring houses with higher density, multipurpose spaces, and movable walls. The benefit of technology is that it can provide mass production with variation.

Fortunately, Mouton rationalizes, because residential architecture takes place on a relatively small scale it’s easy to generate new and lasting attitudes. “It’s easier for people to swallow change a little bit at a time,” he says, “so we can take a few risks and gain traction slowly.” The future of the American Dream depends on those successful changes becoming widespread and permanent. In this way, houses will be attainable by most while sheltering us safely, durably, and beautifully.

About the Author

Shelley D. Hutchins

Shelley D. Hutchins, LEED AP, writes about residential construction and design, sustainable building and living, and travel and health-care issues.

Upcoming Events

  • Sales is a Sport: These Tactics Are the Winning Play

    Webinar

    Register for Free
  • Dispelling Myths and Maximizing Value: Unlock the Potential of Open Web Floor Trusses

    Webinar

    Register for Free
  • Building Future-ready Communities for Less

    Webinar

    Register for Free
All Events