When LaDonna Eriksen, owner of Omaha, Nebraska–based Interiors by Design, and her husband began looking for a home where they could live out their “golden years,” their wants and needs extended beyond the typical requests for a great location with stellar design and finishes. Eriksen, a Certified Living in Place Professional (CLIPP) and Living in Place Ambassador, sought a ranch-style home without stairs that also met the guidelines set in place by the Living in Place Institute, an organization that has developed an educational approach to making all homes safe, healthy, and comfortable for everyone.
Often referred to as “aging in place” or “universal design,” the Living in Place Institute and its members believe designing by these guidelines creates better living situations for all ages, and not just the older generations and those with disabilities.
After months of searching for an existing home they could renovate to Living in Place specifications, the couple decided it would be easier to build. Eriksen took the liberty of designing the home they envisioned, including details such as zero-threshold entries, curbless showers with wet and dry areas, 36-inch doors, custom cabinets, specific electrical and plumbing requirements, and so many more small, but functional fixes that would make day-to-day living easier.
“Very shortly after receiving my CLIPP certification, we started planning,” says Eriksen. “We designed the whole house so that it was safe, healthy, and comfortable so that we could stay here for the rest of our lives.”
At face value, the home may look like a standard ranch, but Eriksen planned and executed the following features to make the home more accessible now and for the future.

Grant Reid Photography
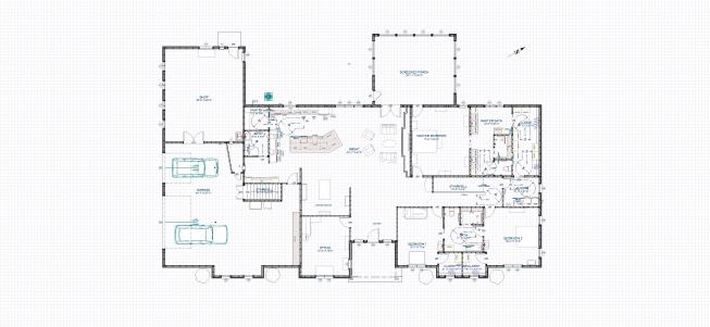
Floor Plan
For Eriksen’s home, it was paramount to have true zero-threshold entries at all exterior doors. This required teamwork with the structural engineer and framer and resulted in poured concrete basement walls with a reverse brick ledge to allow support for the floor trusses. Plus, Eriksen scoured the market for a door frame without a threshold and settled on a product with a drop-down door bottom.
Project Details
Location: Omaha, Nebraska
Builder: Interiors by Design
Project Size: 3,862 square feet
Site Size: 1.83 acres
Completion Date: July 2020
Construction Cost: Withheld
Due to those structural adaptations, the home was built with a basement, which meant adding stairs. “The reason we have a basement in the home basically comes down a location for the furnace, storage, and resale at some point in time,” says Eriksen. “We do not foresee any need of finishing the basement, but we did build two sets of stairs, one from the hall and a second that is accessible from the garage. Both are over 4 feet wide with handrails on both sides and could have a stair lift.”
The roof structure was also designed with trusses, which allowed for fewer walls in the main open living space. Another benefit to the trusses is they provide the necessary blocking to install future patient lift systems above the beds, if necessary.
Upon entrance through the front door, the entry is 42 inches wide for ease of passage with large appliances and furniture, and to allow easy conveyance of a person using a wheelchair, scooter, or walker. All exterior doors have touch-control locks and lever handles, interior doors measure 36 inches with lever handles as well, and hallways were designed to be 48 inches wide.

Grant Reid Photography
Kitchen
In the kitchen, countertops were installed at varied heights to allow users to perform different activities at comfortable positions, including 38 inches at the sink area and major island space, 36 inches at the cooktop, and 34 inches at the end of the island.
Upper cabinets were designed to store items that are used less frequently, while the base cabinets have drawers for easy accessibility. “All my dishes are stored in the drawers since it is much easier to lift plates and bowls up from a drawer than it is to bring them down from the upper cabinets,” continues Eriksen.
Cabinet doors and drawers have soft-close hinges and soft-close drawer slides, and Eriksen selected closed-end, C-shaped pulls for the drawers and square knobs, which are easy to grip, for the upper cabinetry hardware.
A walk-in pantry, with a generous opening and frosted glass pocket door, provides storage for food and small kitchen appliances, with the lowest shelf 24 inches above the floor.
For appliances, Eriksen installed a microwave oven drawer in the island for convenient access and raised the dishwasher 12 inches to make it easy to load and unload from a standing or sitting position. She also selected a double oven with French doors on the upper oven and a French-door refrigerator with two bottom drawers. The smart, touch-control induction cooktop was chosen for peace of mind as well, with technology that senses the presence of cookware and turns off the burners when cookware is removed.

Grant Reid Photography
Bathrooms
To increase comfort and ease in the bathrooms, Eriksen designed the showers with zero-threshold entries and 36-inch openings that allow for wheelchair accessibility. Both showers are equipped with pressure-balanced valves and have wet and dry areas with heated seats, shower controls close to the entrances at 44 inches above the floor, hand-held shower wands, and linear drains.
“The accent tile not only adds pizazz and beauty to the shower, but it provides a horizontal line to help a person maintain their balance, if they find themselves suddenly dizzy in the shower,” Eriksen says.
The bathrooms include comfort-height toilets that are approximately 18 inches above the floor with soft-close, lighted seats. Plus, the shower and commode areas are equipped with aesthetically pleasing grab bars, which can also be used as towel bars.
The floors are electrically heated for comfort. Countertops in the bathrooms are 36 inches high, and bathroom doors either swing out or are pocket doors, in order to eliminate someone getting trapped if they were to collapse and fall against the door.

Grant Reid Photography
Electrical
Electrical outlets were installed 24 inches off the floor to ensure owners don’t have to bend to baseboards to plug items in, while light switches, HVAC controls, and doorbell and garage buttons are 44 inches from the floor—opposed to the standard 48 inches—for an easier reach for kids or people in wheelchairs. Extra outlets were added behind all toilets for bidet seats and nightlights, under sinks inside the vanities, and at the top of the stairway for a possible stair lift.
Occupancy motion-sensing switches in closets, the pantry, and the laundry room allow the user to easily enter and exit with occupied hands, and several lights and lamps are on smart switches or plugged into smart outlets.
The thermostat, electrical panel, and tankless water heater are all located on the main level for ease of access, use, and maintenance.
According to Eriksen, her home is one of the first to be built completely by Living in Place Institute standards and represents “the future of home design, incorporating the principles of universal design, aging in place, multigenerational living, wellness, and accessibility.”

To learn more about the home, tune into the virtual presentation “Designing a Living in Place Home” with Eriksen during Design & Construction Week, Feb. 9–12.