Park Passive, Seattle

Grand | Green Custom

2 MIN READ
Architect Marie Ljubojevic's careful orientation takes advantage of solar heat gain in the winter and natural ventilation in the summer.

Joe Bianco

Architect Marie Ljubojevic's careful orientation takes advantage of solar heat gain in the winter and natural ventilation in the summer.


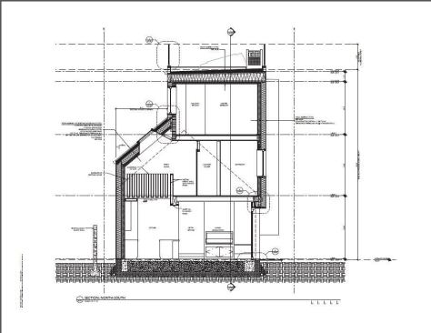
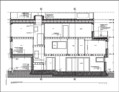
The judges called Park Passive “the epitome of green and also a really cool house.” They were wowed as much by its ultra-insulated building shell as by its good looks and luxury finishes. Using 90 percent less energy for heating and cooling than a traditional home, the Passive House–certified structure is a comfortable 69 degrees for most of the year without any mechanical interventions. Ultra-insulated walls and roof (filled with 16 inches and 20 inches of blown-in fiberglass, respectively) and high-density spray foam under the slab-on-grade foundation help keep interiors a constant temperature. A Mitsubishi mini-split heat pump kicks in on exceptionally hot or cold days. The jury also was impressed with the amount of living space that architect Marie Ljubojevic eked out of the 2,000-square-foot infill lot, which is closely bordered by a neighboring home on the south. The tricky layout was complicated by Passive House requirements that call for minimal glazing on the north side and 16-inch-thick walls.

“In the instance of this house, most of the challenges faced for building a Passive House were related to the lot size and location with another home near the southern lot line,” explains builder Sloan Ritchie of Cascade Built in Seattle. “In addition to the small, shallow floor plate and zoning requirements to work within the existing house’s form, Passive House requirements minimized glazing on the house’s north side, where windows would have been intuitively placed, and required 16-inch-thick walls.”

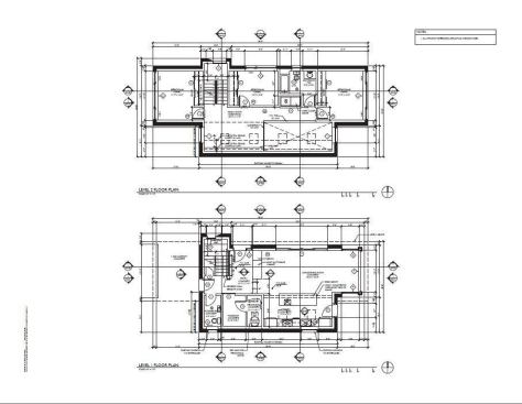
The project’s design challenges led the team to creative solutions, says Ritchie, including the double-height vaulted kitchen connecting the main living area to an upstairs play area, a daylit open stair punctuated with views to the street, a nook for a window bench, and flared bay windows on the front façade. Ljubojevic incorporated four bedrooms and three bathrooms into the three-level-plus-roof-deck plan, with interior finishes that showcase the use of wood from a site-salvaged tree for stair treads, wall paneling, and a bathroom countertop.

Additional sustainable features include heat pump hot water, no-VOC finishes, a heat recovery ventilator, high-performance windows, and pre-wiring for solar.

ON SITE

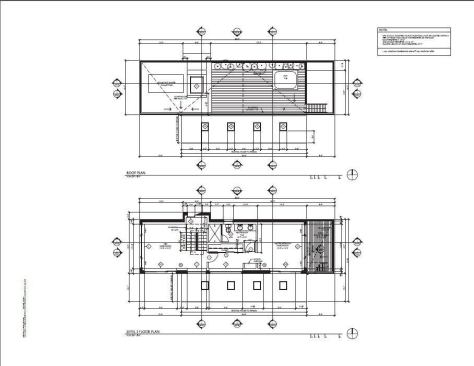
Because the Passive House–certified dwelling is so tightly built, it requires mechanical ventilation to keep the indoor air healthy and comfortable. Builder Sloan Ritchie installed a Zehnder heat recovery ventilator to pull in fresh air and work in conjunction with the Mitsubishi mini-split HVAC system to reduce heating and cooling requirements.

Learn more about markets featured in this article: Seattle, WA.

About the Author

Jennifer Goodman

Jennifer Goodman is a former editor for BUILDER. She lives in the walkable urban neighborhood of Silver Spring, Md.

Upcoming Events

  • Modernize Your Model Homes with Music

    Live Webinar

    Register for Free
  • Happier Homebuyers, Higher Profits: Specifying Fireplaces for Today’s Homes

    Webinar

    Register for Free
  • Sales is a Sport: These Tactics Are the Winning Play

    Webinar

    Register for Free
All Events