Second-Story ADU Sets Precedent for Accessory Building in Minneapolis

The accessory dwelling unit by Peterssen/Keller Architecture pushed code limitations as one of the first in the city.

3 MIN READ

Steve Henke

On a 300-foot-long lot in Minneapolis, local firm Peterssen/Keller Architecture was challenged to design a new type of residential project, consisting of a main home and detached garage—with a twist: The clients asked for an up-and-coming feature, an accessory dwelling unit (ADU), on the second floor of the garage structure.

The idea sprang from Minneapolis’ 2014 zoning code amendments, which allow ADUs on lots with single- or two-family homes. According to Peterssen/Keller designer Chad Healy, city leaders see ADUs as a way to increase the city’s housing supply.

Project Credits

Location: Minneapolis
Architect: Peterssen/Keller Architecture, Minneapolis
Builder: Elevation Homes, Wayzata, Minn.
Size: 1,500 square feet (including 800-square-foot garage)
Site Size: 0.3 acre
Construction Cost: $300 per square foot

“They feel this makes a big impact in a small footprint and allows people to use their lots in different ways,” Healy explains. “Homeowners can either generate extra income or provide an opportunity for relatives to live.”

The code defines an ADU as “a dwelling unit that is located on the same lot as a principal residential structure to which it is accessory, and that is subordinate in area to the principal dwelling.”

With the plan to build two separate structures on each end of the narrow lot, Peterssen/Keller designers sited the 4,400-square-foot main house on the street side. A concrete walkway from the road leads to the two-story contemporary composed of metal panels, white-stained cedar siding, and stone.

Steve Henke

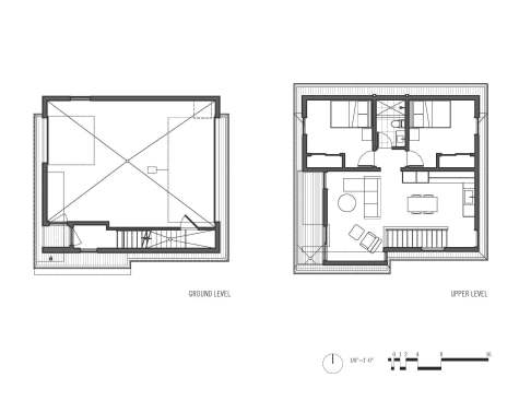
On the other end of the lot, off an alley, the two-story ADU houses a two-car garage with additional space for bicycles, kayaks, and other large items. Enclosed stairs facing the main house lead to the unit upstairs with two bedrooms and one bathroom. At the top of the stairs, the owners are greeted with a bright open-plan living space finished with a small kitchen that holds all necessary appliances, including a stacked washer and dryer set that’s hidden behind cabinet doors. Floor-to-ceiling, black-framed windows—similar to the ones used on the main house—bring natural light into the compact eating and lounge area, while a small attached deck looks to the landscaped area located between the lot’s two structures.

On the other side of the ADU, two bedrooms are separated by a single full bathroom with modern finishes, including a glass-enclosed shower and three-drawer vanity.

Because this was one of the first ADUs constructed in the city, the team had the opportunity to push the limits of the code requirements. At the time of groundbreaking in late 2016, ADUs could be no larger than 1,000 square feet including parking areas. The project’s plans included the roughly 800-square-foot garage and 755-square-foot dwelling upstairs, totaling about 1,500 square feet. The team successfully submitted a variance for the overall increased size.

To create a visual connection and meet the code requirement of keeping the look of the ADU similar to the main house, its exterior echoes textures and finishes from the main house, such as the Fond du Lac limestone, white-stained cedar, and dark metal accents.

“We used the same materials and design language for the ADU as we did for the house,” says Healy. “It has the same quality and feel and really brackets the backyard for the owners.”

The homeowners have gotten a lot of use out of the one-of-a-kind backyard dwelling, Healy says, using it to host both Airbnb renters and out-of-town family members. “The owners will hang out in the backyard and people staying in the ADU will come hang out with them,” he says. “They have gotten to know a lot of people.”

About the Author

Symone Strong

Symone is an editor at Builder. She earned her B.S. in journalism and a minor in business communications from Towson University.

Upcoming Events

  • Protecto Wall VP Standard Installation Video

    Webinar

    Register for Free
  • How Right-Sized Plumbing Saves Money, Saves Water, and Protects Wellness

    Webinar

    Register for Free
  • Building Careers from the Ground Up: The IUPAT Floor Covering Apprenticeship and Training Program

    Webinar

    Register for Free
All Events