The Bal House is an addition to and remodel of a residence in Me…
The Bal House is an addition to and remodel of a residence in Menlo Park, Calif., by Terry & Terry Architecture.
courtesy Terry & Terry Architecture
An image of the house before the renovation.
Terry & Terry Architecture
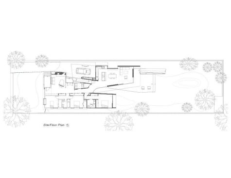
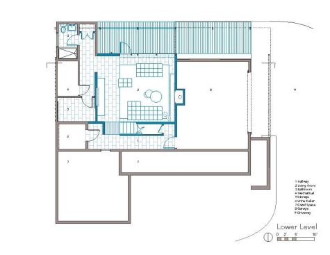
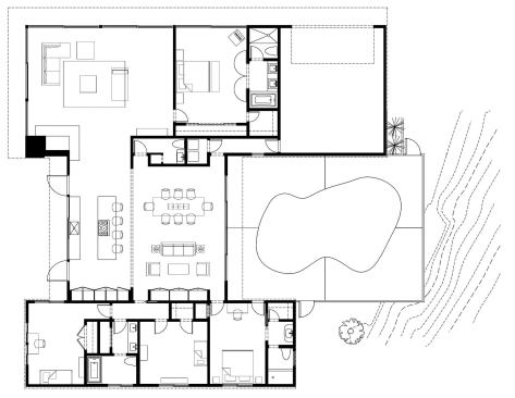
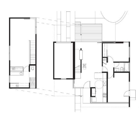
The home's floor plan.
Terry & Terry Architecture
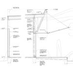
The home's northeast elevation.
Bruce Damonte
The mid-century ranch home's front facade received a light makeo…
The mid-century ranch home's front facade received a light makeover.
Bruce Damonte
A new carport roof incorporates bold geometry and richly texture…
A new carport roof incorporates bold geometry and richly textured wood.
Bruce Damonte
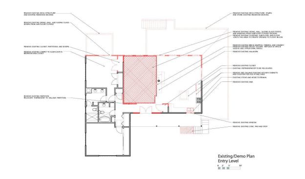
Terry & Terry had the existing rear elevation completely removed…
Terry & Terry had the existing rear elevation completely removed. They added about 1,000 square feet of new space, in two rectilinear volumes.
Bruce Damonte
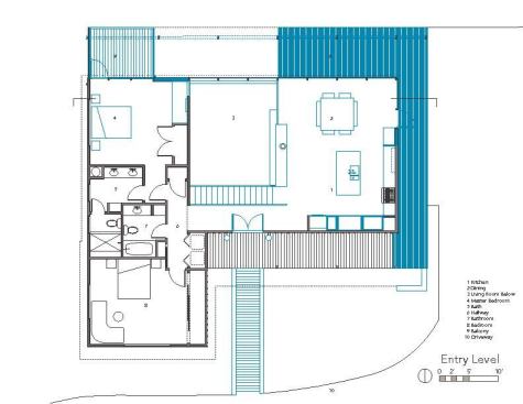
The larger volume contains a kitchen, dining, and media room, wh…
The larger volume contains a kitchen, dining, and media room, while the smaller one (background of photo) holds a master bedroom wing.
Bruce Damonte
Between the addition's two volumes lies a narrow garden integrat…
Between the addition's two volumes lies a narrow garden integrated into the house by a curved glass wall.
Bruce Damonte
Another look at the curved glass wall and garden, which the judg…
Another look at the curved glass wall and garden, which the judges particularly admired.
Bruce Damonte
Cumaru forms the floors and ceilings of the new kitchen, adding …
Cumaru forms the floors and ceilings of the new kitchen, adding depth and a warm layer of color to the space's white walls and marine-blue cabinetry.
Bruce Damonte
Terry & Terry also renovated the existing house. Here, they punc…
Terry & Terry also renovated the existing house. Here, they punctuated the presence of a street-facing picture window with a modern steel frame.
Benjamin Benschneider
Benjamin Benschneider
Benjamin Benschneider
Benjamin Benschneider
Benjamin Benschneider
Bill Timmerman
Bill Timmerman
Bill Timmerman
Bill Timmerman
Bill Timmerman
Bill Timmerman
Bill Timmerman
Bill Timmerman
Bill Timmerman
Bill Timmerman
Courtesy colab studio
Courtesy colab studio
Ben Ryuki Miyagi
Ben Ryuki Miyagi
Ben Ryuki Miyagi
Ben Ryuki Miyagi
Ben Ryuki Miyagi
Ben Ryuki Miyagi
John Sutton
John Sutton
John Sutton
John Sutton
Courtesy Ohashi Design Studio
Courtesy Ohashi Design Studio
John Sutton
John Sutton
John Sutton
Robert Sweet, ras-a inc.
Robert Sweet, ras-a inc.
Robert Sweet, ras-a inc.
ras-a-inc.
Robert Sweet, ras-a inc.
Robert Sweet, ras-a inc.
Robert Sweet, ras-a inc.
Robert Sweet, ras-a inc.
Robert Sweet, ras-a inc.
Robert Sweet, ras-a inc.
Charles D. Smith
Charles D. Smith
Charles D. Smith
Aside from our annual design awards winners, the most viewed story on residential architect’s website is a 2004 piece on remodeling ubiquitous American house types—including mid-20th century suburban homes. This topic’s popularity is no doubt driven by the thousands of homeowners saddled with outdated housing located in desirable neighborhoods.
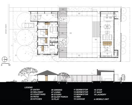
Although architects love to tackle the new custom homes that often win our awards, their best supply of work may come from unlocking the potential of these aging ranches and split-levels. Matthew and Maria Salenger, AIA, of colab studio created an exciting example of design’s transformative power with their own 1950s ranch remodel in Tempe, Ariz. (shown below). And yes—it, too, won a residential architect Design Award. Architects are the masters of reinvention—a skill we’ll need more than ever in the next 15 years we chronicle.
View more photos of this project and other recent mid-century makeovers in our slideshow.