Rejig a Single-Family Home to Snag Multigen Buyers

Bringing flex power to a single-family house can expand your pool of buyers.

1 MIN READ
Guest architect Bill Hezmalhalch is principal of WHA Architects in Santa Ana, Calif. bill@whainc.com

Guest architect Bill Hezmalhalch is principal of WHA Architects in Santa Ana, Calif. bill@whainc.com

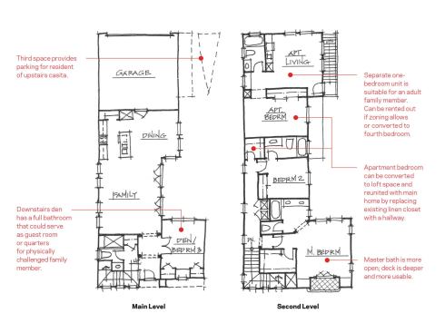
The rise of multigenerational living has created a demand for homes to suit all sorts of household mixes: parents moving in with kids, kids moving in with parents, siblings moving in with each other. Accommodating the need for privacy within a reasonably sized footprint is the crucial issue.By taking a typical alley-loaded, single-family home and making a home within that home, we’ve expanded our pool of buyers. Our plan offers several bedroom and suite options, including a main-floor bedroom for an elderly family member or guests and a separate apartment that could be rented out for additional income, depending on local zoning.

The original home, on a 36-foot-by-85-foot lot, was a three-bedroom, two-and-a-half-bath house with a parlor off the dining room. In our redo, we moved the kitchen closer to the garage and removed the formal dining room. The dining room was made into a full bath so that the parlor could then be used as a bedroom. Moving up the rear yard fence made way for a third parking space on grasscrete, which makes the area attractive and usable when it’s not being used for parking.

Over the garage, we built a separate one-bedroom casita with a full kitchen and its own entrance, creating a possible rental unit. Preframing the doorway allows the option of reuniting the casita later on with the main house if more bedrooms are needed. In addition to attracting more buyers for an existing site, this strategy could be used in places where higher density is permitted but residents have resisted traditional multifamily designs. In pricey urban areas where homeowners need to generate extra income, for example, these types of piggy-back apartments do well.

About the Author

Upcoming Events

  • Protecto Wall VP Standard Installation Video

    Webinar

    Register for Free
  • How Right-Sized Plumbing Saves Money, Saves Water, and Protects Wellness

    Webinar

    Register for Free
  • Building Careers from the Ground Up: The IUPAT Floor Covering Apprenticeship and Training Program

    Webinar

    Register for Free
All Events