The house, right, sits adjacent to another home designed by Schi…
The house, right, sits adjacent to another home designed by Schindler.
Grant Mudford
The new front yard features drought-tolerant plantings and a com…
The new front yard features drought-tolerant plantings and a communal garden where neighbors sit and share coffee.
Grant Mudford
The architect removed a piece of cabinetry between the kitchen a…
The architect removed a piece of cabinetry between the kitchen and living room.
Grant Mudford
New white oak floors match the width and wood species of the ori…
New white oak floors match the width and wood species of the original flooring.
Grant Mudford
The restored house has LED lighting; wooden window and door fram…
The restored house has LED lighting; wooden window and door frames were preserved and fitted with tempered glass.
Grant Mudford
Living room before. Ehrlich forensically reconstructed and refin…
Living room before. Ehrlich forensically reconstructed and refinished built-ins and furniture and restored the fireplace.
Grant Mudford
Living room after. Custom kitchen cabinets are made of layered m…
Living room after. Custom kitchen cabinets are made of layered maple plywood with a laminate skin.
Grant Mudford
Bedroom before.
Grant Mudford
Bedroom after.
Grant Mudford
In the backyard, an existing 70-year-old grapevine grows over a …
In the backyard, an existing 70-year-old grapevine grows over a new galvanized steel trellis, inspired by the sleeping porches of Schindler’s Kings Road house.
Grant Mudford
The patio view from the house.
nmarble
Robert Lautman
The contractor restored the entire structure of this 1959 Frank …
The contractor restored the entire structure of this 1959 Frank Lloyd Wright house. Architect Richard Williams chose period furnishings that respect the houses authority and powerful setting.
Robert Lautman
The linear house perches near the edge of Potomac River rapids.
Robert Lautman
The dining room has a spectacular view of the river below and co…
The dining room has a spectacular view of the river below and conveys a sense of prospect and refuge.
Robert Lautman
The house's simplicity and massing, shown here in the entry cour…
The house's simplicity and massing, shown here in the entry court, recall other late Usonian houses.
Robert Lautman
Cupped and damaged mahogany ceilings panels were repaired and pu…
Cupped and damaged mahogany ceilings panels were repaired and put back together.
Robert Lautman
Original recessed down lights, like those in the master bedroom,…
Original recessed down lights, like those in the master bedroom, were restored and supplemented with atmospheric lighting.
Robert Lautman
Here, the living and dining room areas are seen at dawn. The kit…
Here, the living and dining room areas are seen at dawn. The kitchen received new high-end cabinetry and concrete countertops.
Robert Lautman
The restoration included refurbishing original red concrete floo…
The restoration included refurbishing original red concrete floors, shown here in the guest room.
Few of Wright's buildings from his Usonian period were sited wit…
Few of Wright's buildings from his Usonian period were sited with such a dramatic backdrop as this project by Williams.
Courtesy Richard Williams Architects
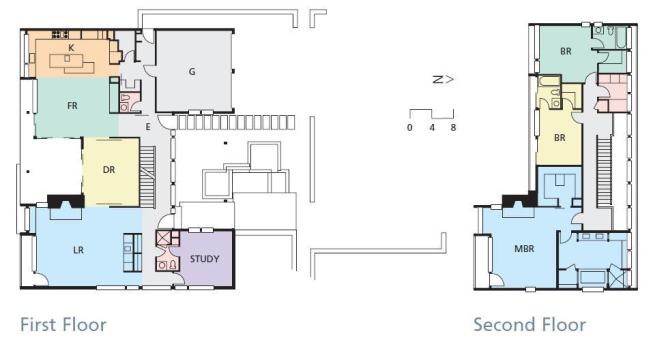
The site and floor plan.
Paul Warchol
Removing all the interior walls revealed floor-to-ceiling window…
Removing all the interior walls revealed floor-to-ceiling window openings that couldnt be experienced in the original plan.
Paul Warchol
An allee of walnut casework defines the public areas.
Paul Warchol
A computer area occupies a niche on axis with the glass entry no…
A computer area occupies a niche on axis with the glass entry node.
Paul Warchol
The smooth opalescence of Corian casework in the kitchen, mudroo…
The smooth opalescence of Corian casework in the kitchen, mudroom, and bath is a textural counterpoint to the white brick and plaster.
Paul Warchol
The skylight-encircled chimney stands as an obelisk.
Paul Warchol
The opposite view from the glass entryway, looking toward the pu…
The opposite view from the glass entryway, looking toward the public area from the bedroom pavilion.
Paul Warchol
The glassy living spaces open to a full-length deck.
Ron Southwick
Site plan for the project.
Robert Batey
The former summer residence now serves as a comfortable home for…
The former summer residence now serves as a comfortable home for year-round living.
Robert Batey
His remodel included a skillful interior makeover; a new guestho…
His remodel included a skillful interior makeover; a new guesthouse attached to the main house by a breezeway; and cleaned-up and redefined outdoor rooms.
Brian Pittman
Architect Brian Pittman ushered it into the 21st century with a …
Architect Brian Pittman ushered it into the 21st century with a sure and gentle hand. His remodel included a skillful interior makeover; a new guesthouse attached to the main house by a breezeway; and cleaned-up and redefined outdoor rooms.
Assassi Productions
2004 RADA Renovation / Grand Mankins-Camp Residence, San Franc…
2004 RADA Renovation / Grand Mankins-Camp Residence, San Francisco Substance Architects, Des Moines, Iowa The street-level entry was pared down and simplified, both inside and out, in order to emphasize its angular architecture.
Assassi Productions
Interior walls were eliminated and storage areas were recessed i…
Interior walls were eliminated and storage areas were recessed into the walls so that views from all living spaces would remain unobstructed and open.
Assassi Productions
The stair down to the lower level was also reorganized so that s…
The stair down to the lower level was also reorganized so that skyline views could be seen from the front door.
Assassi Productions
The street-level entry was pared down and simplified, both insid…
The street-level entry was pared down and simplified, both inside and out, in order to emphasize its angular architecture.
Assassi Productions
The stair down to the lower level was also reorganized so that s…
The stair down to the lower level was also reorganized so that skyline views could be seen from the front door.
upper level before
upper level after
lower level before
lower level after
Jeffrey Totaro
Jeffrey Totaro
Studio elevation before the renovation.
Jeffrey Totaro
Studio elevation after the original additions and renovation.
Jeffrey Totaro
The studio after the additions were demolished. The original stu…
The studio after the additions were demolished. The original studio was oriented to maximize northern light and capitalize on views of Mill Creek, while the garage was oriented toward an existing barn. This interplay of orientations gave the studio its unique geometry.
Jeffrey Totaro
The bridge is tapered to tuck behind the reconstructed stone par…
The bridge is tapered to tuck behind the reconstructed stone parapet on the south elevation.
Jeffrey Totaro
The new bridge and restored studio, viewed from the house.
Jeffrey Totaro
With its mid-20th-century appendages removed, the studios settin…
With its mid-20th-century appendages removed, the studios setting and massing are exposed.
Jeffrey Totaro
Restoration involved welding new columns around the originals an…
Restoration involved welding new columns around the originals and reinforcing the water-damaged chicken-wire floor deck with steel.
Jeffrey Totaro
Guests are often treated to cocktails and music at the studio.
Jeffrey Totaro
The living room focuses its view on the studio.
Jeffrey Totaro
The foyer of the studio, now used as a private art gallery.
Jeffrey Totaro
The sculptural stairway before.
Jeffrey Totaro
The sculptural stairway after.
Courtesy Martin Jay Rosenblum
The finished site plan.
Michael Biondo
This remodeled kitchen represents an effort to project the vocab…
This remodeled kitchen represents an effort to project the vocabulary of Richard Neutra—the house’s original architect—into the present day.
Michael Biondo
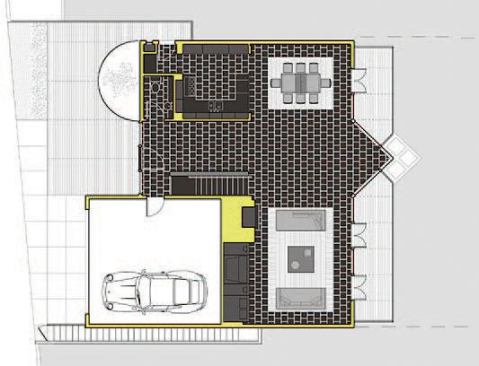
The project clearly distinguishes between new and restoration.
Courtesy Joeb Moore + Partners
The original kitchen.
Michael Biondo
Stainless steel columns—so slender that they are practically t…
Stainless steel columns—so slender that they are practically two-dimensional—mark the path of the partition that isolated the original kitchen from the living and dining areas.
Michael Biondo
Knife-edge stainless steel counters top the gloss-white base cab…
Knife-edge stainless steel counters top the gloss-white base cabinets. The uppers are acid-washed steel.
Michael Biondo
The new columns are nearly invisible when viewed head-on.
Michael Biondo
Blackened steel plate wraps the doorway to the house’s back ha…
Blackened steel plate wraps the doorway to the house’s back hall.
Courtesy Joeb Moore + Partners
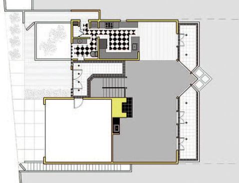
The kitchen in axonometric view.
Daproza, Johanna
2007 CHDA Custom Home/More Than 5,000 Square Feet / Merit New …
2007 CHDA Custom Home/More Than 5,000 Square Feet / Merit New Canaan Conn., Residence Joeb Moore + Partners, Greenwich, Conn. The home's all-new second level is sheathed in metal and elevated a few inches above the rebuilt cedar-clad first floor.
The new building continues the old house's strong relationship t…
The new building continues the old house's strong relationship to the outdoors and uses radiant heat, bluestone floors, and lots of glass, just like its predecessor.
Daproza, Johanna
Prutting & Co. Custom Builders
Whether restoring, remodeling, or completely rebuilding, the prospect of making any changes to a house designed by a respected architect can be daunting. This collection of updated projects includes originals by Rudolph Schindler, Frank Lloyd Wright, Richard Neutra, Charles H. Richter, Felder Weeks, Aaron Green, and Eliot Noyes. Definitely a tough acts to follow.
The architects who painstakingly brought these houses back to life not only took into consideration existing architecture, but also the intentions of the initial designers. This meant research on other works by those master architects, design trends of the time, plus finding appropriate finishes and products to fit the style. Across the board, the biggest challenge was changing floor plans for clients’ contemporary lifestyles without altering the spirit of the house. Restraint is the word for that part of the process. Many of the updates required knocking down interior walls and replacing or expanding glazing to strengthen outdoor connections and open living areas. Several of the houses had undergone less sensitive remodels or additions, so getting back to the original architect’s layout figured highly into the new design. When renovating an Aaron Green house for his twin brother, Paul Mankins, FAIA, explains that “a lot of the solution was mainly getting rid of the bad stuff.”
Replacing outdated systems and crumbling structural components without destroying too much of the architecture was also a big hurdle. Steven Ehrlich, FAIA, viewed it as an opportunity to make the Schindler house he restored as green as possible. He did such a good job that his daughter and her family now own the house, so Ehrlich continues to enjoy his meticulous hard work. Another benefit for all of the architects who successfully revised these masterworks—they all received a Residential Architect or Custom Home Design Award for their efforts.