Riverside Barbecue Pavilion

1 MIN READ

It would have been tempting to try to build a barbecue pavilion as grand as the views from this site, which overlooks the Yellowstone River and Montana’s Rocky Mountains. Instead, architect Stephen Muse built a structure that didn’t interrupt them.

“We didn’t want it to look like we tried too hard,” says Muse, noting that the pavilion is used by residents of the 3,600-acre Yellowstone Bend Ranch, roughly 85 percent of which is set aside as a conservation area. Local ranchers graze cattle there. “We used the barest of materials … . This is a place to sit protected from the elements to enjoy the amazing views.”

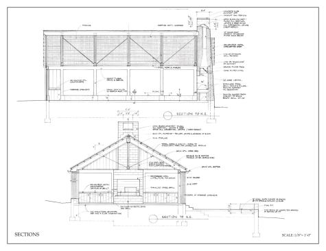
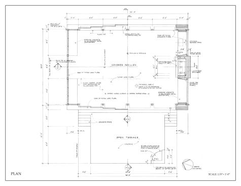
Designed with common materials for the uncommon view, the structure is essentially a corrugated metal roof sitting on columns. The barbecue area is fashioned from unadorned masonry blocks. The walls, really doors that slide into a stack to completely open the structure’s sides, are made of Douglas fir siding, emulating building materials from ranches.

Project Details:

Special Focus

Category: Outdoor living space

Entrant/Architect: Muse Architects, Bethesda, Md.

Builder: On-Site Management, Bozeman, Mont.

The pavilion has no sheer walls for support in Montana’s stiff winds, so a cable system in the roof members gives extra stability without distracting from the simple framing. “It’s really industrial farm-like materials,” Muse says. “We didn’t want this thing to look too new sitting on the river. We wanted instant age and for it to blend in.”

About the Author

Upcoming Events

  • Protecto Wall VP Standard Installation Video

    Webinar

    Register for Free
  • How Right-Sized Plumbing Saves Money, Saves Water, and Protects Wellness

    Webinar

    Register for Free
  • Building Careers from the Ground Up: The IUPAT Floor Covering Apprenticeship and Training Program

    Webinar

    Register for Free
All Events