How skinny can you build? Cities and first-ring suburbs are making a decisive comeback in the new economy, but building in old-growth neighborhoods and emerging corridors has its inevitable constraints, particularly if you are weaving detached homes back into the neighborhood fabric. One common challenge is the narrow lot. In some cases, such zoning is a consequence of tradition; in others, it is the result of privately subdivided properties or municipal smart growth initiatives that offer fast-track permitting for higher density redevelopment. Regardless of the reasons, here are a sampling of 20-feet-wide homes that live quite comfortably in close quarters.
1
of 31
DesignLens / John Bare Photography
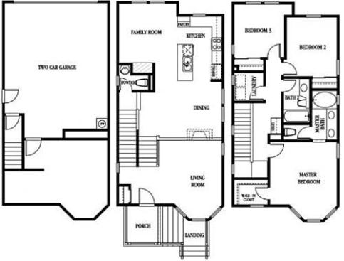
John Laing Homes Collection – Oceana Architect: KTGY Group Hercu…
John Laing Homes Collection – Oceana Architect: KTGY Group Hercules, California Width – 20 feet
DesignLens / John Bare Photography
John Laing Homes Collection – Oceana Architect: KTGY Group Hercu…
John Laing Homes Collection – Oceana Architect: KTGY Group Hercules, California Width – 20 feet
DesignLens / John Bare Photography
John Laing Homes Collection – Oceana Architect: KTGY Group Hercu…
John Laing Homes Collection – Oceana Architect: KTGY Group Hercules, California Width – 20 feet
DesignLens / John Bare Photography
John Laing Homes Collection – OceanaArchitect: KTGY Group Hercul…
John Laing Homes Collection – OceanaArchitect: KTGY Group Hercules, California Width – 20 feet
DesignLens / John Bare Photography
John Laing Homes Collection – Oceana Architect: KTGY Group Hercu…
John Laing Homes Collection – Oceana Architect: KTGY Group Hercules, California Width – 20 feet
DesignLens / John Bare Photography
John Laing Homes Collection – Oceana Architect: KTGY Group Hercu…
John Laing Homes Collection – Oceana Architect: KTGY Group Hercules, California Width – 20 feet
DesignLens / John Bare Photography
John Laing Homes Collection – Oceana Architect: KTGY Group Hercu…
John Laing Homes Collection – Oceana Architect: KTGY Group Hercules, California Width – 20 feet
DesignLens / John Bare Photography
John Laing Homes Collection – Oceana Architect: KTGY Group Hercu…
John Laing Homes Collection – Oceana Architect: KTGY Group Hercules, California Width – 20 feet
DesignLens / John Bare Photography
John Laing Homes Collection – Oceana Architect: KTGY Group Hercu…
John Laing Homes Collection – Oceana Architect: KTGY Group Hercules, California Width – 20 feet
DesignLens / John Bare Photography
John Laing Homes Collection – Oceana Architect: KTGY Group Hercu…
John Laing Homes Collection – Oceana Architect: KTGY Group Hercules, California Width – 20 feet
DesignLens / John Bare Photography
John Laing Homes Collection – Oceana Architect: KTGY Group Hercu…
John Laing Homes Collection – Oceana Architect: KTGY Group Hercules, California Width – 20 feet
DesignLens / John Bare Photography
Cachette Pulte Homes Architect: Bucilla Group Architecture Irvin…
Cachette Pulte Homes Architect: Bucilla Group Architecture Irvine, California Width – 20 feet
DesignLens / John Bare Photography
Cachette Pulte Homes Architect: Bucilla Group Architecture Irvin…
Cachette Pulte Homes Architect: Bucilla Group Architecture Irvine, California Width – 20 feet
DesignLens / John Bare Photography
Cachette Pulte Homes Architect: Bucilla Group Architecture Irvin…
Cachette Pulte Homes Architect: Bucilla Group Architecture Irvine, California Width – 20 feet
DesignLens / John Bare Photography
Cachette Pulte Homes Architect: Bucilla Group Architecture Irvin…
Cachette Pulte Homes Architect: Bucilla Group Architecture Irvine, California Width – 20 feet
DesignLens / John Bare Photography
Cachette Pulte Homes Architect: Bucilla Group Architecture Irvin…
Cachette Pulte Homes Architect: Bucilla Group Architecture Irvine, California Width – 20 feet
DesignLens / John Bare Photography
Cachette Pulte Homes Architect: Bucilla Group Architecture Irvin…
Cachette Pulte Homes Architect: Bucilla Group Architecture Irvine, California Width – 20 feet
DesignLens / John Bare Photography
Cachette Pulte Homes Architect: Bucilla Group Architecture Irvin…
Cachette Pulte Homes Architect: Bucilla Group Architecture Irvine, California Width – 20 feet
DesignLens / John Bare Photography
The Lakes at Annecy Classic Communities Architect: KTGY Architec…
The Lakes at Annecy Classic Communities Architect: KTGY Architects Gilbert, Arizona Width – 20 feet
DesignLens / John Bare Photography
The Lakes at Annecy Classic Communities Architect: KTGY Architec…
The Lakes at Annecy Classic Communities Architect: KTGY Architects Gilbert, Arizona Width – 20 feet
DesignLens / John Bare Photography
The Lakes at Annecy Classic Communities Architect: KTGY Architec…
The Lakes at Annecy Classic Communities Architect: KTGY Architects Gilbert, Arizona Width – 20 feet
DesignLens / John Bare Photography
The Lakes at Annecy Classic Communities Architect: KTGY Architec…
The Lakes at Annecy Classic Communities Architect: KTGY Architects Gilbert, Arizona Width – 20 feet
DesignLens / John Bare Photography
The Lakes at Annecy Classic Communities Architect: KTGY Architec…
The Lakes at Annecy Classic Communities Architect: KTGY Architects Gilbert, Arizona Width – 20 feet
DesignLens / John Bare Photography
Sutter's Mill Centex Homes Architect: Bassenian/Lagoni Architect…
Sutter's Mill Centex Homes Architect: Bassenian/Lagoni Architects Ladera Ranch, California Width – 15 feet
DesignLens / John Bare Photography
Sutter's Mill Centex Homes Architect: Bassenian/Lagoni Architect…
Sutter's Mill Centex Homes Architect: Bassenian/Lagoni Architects Ladera Ranch, California Width – 15 feet
DesignLens / John Bare Photography
Sutter's Mill Centex Homes Architect: Bassenian/Lagoni Architect…
Sutter's Mill Centex Homes Architect: Bassenian/Lagoni Architects Ladera Ranch, California Width – 15 feet
DesignLens / John Bare Photography
Sutter's Mill Centex Homes Architect: Bassenian/Lagoni Architect…
Sutter's Mill Centex Homes Architect: Bassenian/Lagoni Architects Ladera Ranch, California Width – 15 feet
DesignLens / John Bare Photography
The Arborage Richmond American Homes Architect: William Hezmalha…
The Arborage Richmond American Homes Architect: William Hezmalhalch Architects Ladera Ranch, California Width – 20 feet
DesignLens / John Bare Photography
The Arborage Richmond American Homes Architect: William Hezmalha…
The Arborage Richmond American Homes Architect: William Hezmalhalch Architects Ladera Ranch, California Width – 20 feet
DesignLens / John Bare Photography
The Arborage Richmond American Homes Architect: William Hezmalha…
The Arborage Richmond American Homes Architect: William Hezmalhalch Architects Ladera Ranch, California Width – 20 feet
DesignLens / John Bare Photography
The Arborage Richmond American Homes Architect: William Hezmalha…
The Arborage Richmond American Homes Architect: William Hezmalhalch Architects Ladera Ranch, California Width – 20 feet