Residential

Spanish Oaks Spa Bath Wins 2010 Watermark Award

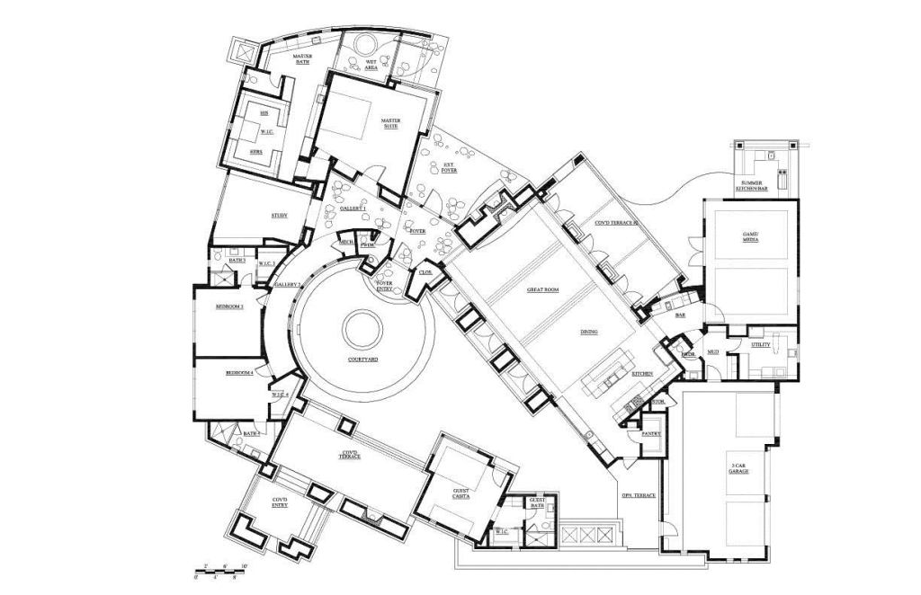
Spanish Oaks Spa Bath

1 MIN READ

Thomas

Courtyards figure prominently in this showcase home, which was originally designed and built as part of a Lance Armstrong Foundation fundraiser. One of them, a private courtyard off the master suite, allowed the architects to have some fun with the bath layout.

Divided into wet and dry areas, the L-shaped space opens with an expansive walk-in closet flanked by his-and-hers vanities, then doglegs into a wet area, where the flooring shifts from slate to river rock. Here, water cascades from a ceiling-mounted faucet into a 3,500-pound, handcut granite soaking tub, which the builder installed using hydraulic dollies.

“They basically had one chance to drop it in exactly the right spot, and they nailed it,” says architect Bob Wetmore. “The waterfall comes from the ceiling, and there is absolutely no splash.”

Behind the tub, a massive pivot door connects an open shower to a private outside play area with hot tub spa, pool, and fireplace.

Entrant/Architect: Cornerstone Group Architects, Austin, TexasBuilder: Emerald Crest Development, Austin

About the Author

Upcoming Events

  • Protecto Wall VP Standard Installation Video

    Webinar

    Register for Free
  • How Right-Sized Plumbing Saves Money, Saves Water, and Protects Wellness

    Webinar

    Register for Free
  • Building Careers from the Ground Up: The IUPAT Floor Covering Apprenticeship and Training Program

    Webinar

    Register for Free
All Events