Sutter Brownstones, Sacramento, Calif.

Sacramento, Calif.

1 MIN READ

When 32 residences in Sacramento’s historic midtown district were razed to make way for a hospital expansion, the development deal mandated that the same number of homes be replaced elsewhere—specifically on a .73-acre spot formerly occupied by a parking structure.

But there was a hitch. The unit count demanded approximately 43 units to the acre, while neighborhood groups, concerned about property values, insisted that the new homes be fee-simple, detached residences, each with a covered parking space.

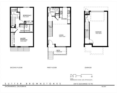
That would have been a nearly impossible density for single-family homes, if not for the ingenious pro forma crafted by LPAS. The site plan clusters four parallel rows of houses around pedestrian paseos and book-ends them with 12 perpendicular units lining the street edge. Narrowing the floor plates allowed for a 6-inch separation between exterior walls, explains architect Carl Lubawy, “although that left us with units that are only 18 feet wide, so the floor plans are very open.”

To meet the parking requirement, the plan specifies 14 attached garages and 18 detached common garages. Tuck-under space for auto courts was created by elevating the paseos 4 feet above grade, and then bumping each unit up an additional 4 feet, with front entries accessible via walk-up stoops. “Raising everything off the street turned out to be a great way of privatizing the units … without gating them off,” Lubawy says.

The project’s industrial brick exteriors reference other landmark buildings in the area, and four of the homes are designed as live/work units.

MERIT
Category: Infill project
Entrant/Architect/Land planner/Landscape architect: LPAS, Sacramento, Calif.
Builder: Walsh & Forster, Portland, Ore.
Developer: LoftWorks, Sacramento
Interiordesigner: blankblank, Sacramento

Learn more about markets featured in this article: Portland, OR.

About the Author

Upcoming Events

  • Protecto Wall VP Standard Installation Video

    Webinar

    Register for Free
  • How Right-Sized Plumbing Saves Money, Saves Water, and Protects Wellness

    Webinar

    Register for Free
  • Building Careers from the Ground Up: The IUPAT Floor Covering Apprenticeship and Training Program

    Webinar

    Register for Free
All Events