Residential

The Beach House

Custom Detail | Merit Award

1 MIN READ

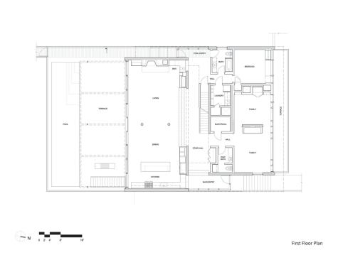
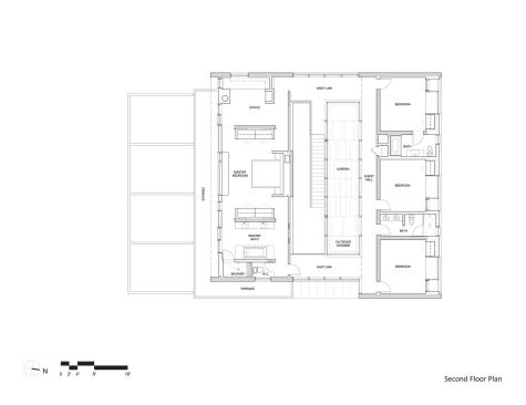
Our judges singled out these waterjet-cut aluminum screens as a creative example of how to bring classical interest to a contemporary form. Mounted on east and west glass façades, they bracket a double-height stair hall, the contemplative core of a house that otherwise is all about the ocean view. A planted roof on the second floor inspired the abstracted vines-and-flowers pattern, which brings a softer, more natural feeling to the core and sketches the sun’s movement throughout the day. “Because the screens face east and west, the morning light that filters through comes back in the evening through the west side of the house,” says architect Andrew Plumb.

In addition to providing hurricane protection and a counterpoint to the house’s hard geometries, the screens offer privacy from adjacent neighbors on the narrow lot. “You focus on the pattern and don’t see past it, but light still comes into the center of the deep plan,” Plumb says. The 3/8-inch powder-coated aluminum plates swing out so that the windows behind them can be cleaned.—C.W.

About the Author

Cheryl Weber

Cheryl Weber, LEED AP, is a senior contributing editor to Custom Home and a frequent contributor to Builder. 

Upcoming Events

  • Modernize Your Model Homes with Music

    Live Webinar

    Register for Free
  • Happier Homebuyers, Higher Profits: Specifying Fireplaces for Today’s Homes

    Webinar

    Register for Free
  • Sales is a Sport: These Tactics Are the Winning Play

    Webinar

    Register for Free
All Events