The Long and Winding Road

A perilous hill country lane leads to a peaceful Texas retreat.

7 MIN READ

Paul Bardagjy

Getting to Carl and Helen Lasner’s house in the Texas hill country takes some perseverance. A twisting, two-mile-long route guides you right through a creek not once but three times, and if there’s been a storm recently you’d better be prepared to turn around and go home. “Road Impassable During High Water” reads a roadside sign, rather ominously.

Once you arrive at the long, low, stone-and-wood structure, though, the entire journey seems worth the effort. The team behind the home’s design and construction—local contractor Michael Vernor, architects Bob Shemwell, Rick Archer, and Steve Kline of the San Antonio firm Overland Partners, and the Lasners—can particularly appreciate this situation. It mirrors uncannily the project’s arduous, two-year building process and eventual successful completion. “The house was a challenge for everyone involved,” admits Kline, the project manager. “There was a lot of drama, but it kept on moving. There was never a point where construction just stopped.”

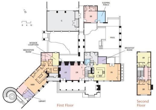
The first hurdle to clear was the decision about where and how to site the house. Carl Lasner spent a year and a half walking his 135-acre site in the town of Wimberley, halfway between San Antonio and Austin. He decided that the best place to build would be on a natural clearing in the middle of the property rather than a tempting site down by the creek. “For me the creek needs to be a destination, not something we’re looking at all the time,” he says. Overland Partners agreed, and after much maneuvering managed to eke out a one-room-deep floor plan wedged in among the existing oak and elm trees surrounding the clearing.

Not only does the 5,000-square-foot plan’s narrow width—about 25 to 28 feet across in most places—ensure a snug fit between the trees, it also serves to enhance the home’s connection to the outdoors. Nearly every room contains multiple openings to the outside. Interspersed outdoor rooms such as the pool and patio, a covered dining pavilion, and a motor court break up the home’s massing and let extra light inside. And by stretching the house out along its site like a piece of taffy, the architects offered an impressive level of privacy for each part of the household. A guest room and sleeping porch are separated from the main house by a breezeway, the master bedroom occupies a dogleg at the far western edge of the floor plan, and a second-floor tower holds bedrooms for Carl Lasner’s two teenage children.

The home’s material selections amped up the degree of difficulty. Lasner happens to own a good-sized hardwood lumber distribution company, which gave him access to a wealth of high-end woods like pecan and cypress. For the building’s stone walls he chose a sandstone from Abilene, Texas, rather than the more typical local limestone. The logistics of trucking in 1,200 tons of stone and having lumber milled from scratch were new to contractor Vernor, whose experience lay mostly in building homes from customized stock plans. So was the process of making custom pecan window frames, which were stained and sealed to prevent rain damage. “This was a complicated house,” he says. “I wasn’t mentally prepared for it.” The labor-intensive decision making and constant back-and-forth among builder, client, and architect that characterize an ultra-custom project like this one took him by surprise. So did the tiny margin for error. “The materials were very expensive,” he says. “We had to be so careful.”

As hard as they were to deal with, there’s no doubt that the blend of materials works beautifully. The sandstone anchors the house to its site, and the pecan floors, cabinetry, and window frames and cypress ceilings warm up the stone. At night, the woods give the home a honey-toned glow, with lights reflecting off their glossy beams. Using stone for some interior walls as well as for the exterior lends a sense of continuity to the entire project. “We really wanted that materiality of stone going from outside to inside,” says architect Kline.

But the pleasure of basking in a job well done wasn’t yet available to Vernor when he developed a debilitating headache. It happened on the site, about 85 percent of the way through the project. The headache turned out to be a symptom of a life-threatening brain aneurysm. He underwent successful emergency surgery, and spent three and a half weeks recovering. While he attributes the aneurysm to a number of factors, he doesn’t deny that work-related stress may have contributed to the high blood pressure which led to his illness. “The aneurysm had been coming for a long time, but this house pushed me to the limit,” he says.

During the time he was out of commission, project superintendent Keith Mulder visited him every morning and evening with progress updates. Veteran trim carpenters J.P. Schmidt and Jason Carroll also stepped in to help manage things. The pair “saved the day,” according to Lasner, who took over parts of the contracting and visited the site three times a week from his then-home in Austin. This combination of contractors oversaw the painting and finishing process, as well as some final trim and stone work. Once he was healthy again, Vernor returned for the very end of the job and took care of final touches like installing appliances and doorknobs.

As much stress as the house caused, it now produces the exact reverse. “The biggest compliment we received about it was when Carl told us that he and Helen used to seek out serene, relaxing vacation places,” recalls Kline. “He said that now they live in a place like that.” For his part, Vernor has no regrets. “I’m glad I did the house,” he says. “It broadened my spectrum of building knowledge.” The Lasners love to sip their morning coffee on the back porch and watch the incredible diversity of birds and other wildlife that roam their land, or maybe take a stroll down to a nearby ravine with their dogs. You get the feeling that when the creek rises too high for them to leave, they don’t mind a bit.

Project Credits: Builder: Michael Vernor, San Marcos, Texas; Architect: Overland Partners, San Antonio, Texas; Living space: 5,000 square feet; Site size: 135 acres; Construction cost: Withheld; Photographer: Paul Bardagjy (except where noted).

Resources: Bathroom plumbing fittings: Kallista; Dishwasher, garbage disposal, oven, refrigerator: Kitchen Aid; Hardware: Rocky Mountain Hardware and Waterwood; Lighting fixtures: Ironware International, Lightolier, Palco, and Terzani; Patio doors and windows: Marvin.


Details: Under the Stars

The clients chose Overland Partners as their architects based largely on one building they’d seen by the firm: the Lady Bird Johnson Wildflower Center in Austin, Texas. They hoped their house would emulate the center’s gentle relationship to its site and its use of traditional hill country building materials in a fresh way. “They wanted the same tone, texture, and attitude toward the outdoors,” says Bob Shemwell, principal-in-charge on the Lasner residence.

One of the home’s strongest references to the center is the hot tub off the master bedroom wing. The architects elevated it in a cylindrical sandstone container, so it’s not visible from the ground. “The shape is a play on the cistern at the wildflower center,” says project manager Steve Kline. “There’s a little secrecy to it.” A footlighted stone stairway wraps around the cistern and leads up to the hot tub, which gains more privacy from the surrounding treetops. The Lasners can watch the sunset or the stars from their hidden escape, unburdened by competing lights from the house below.


The Builder: Comeback Trail

Michael Vernor is the Michael Jordan of the building industry: He keeps trying to retire from the business, but something keeps pulling him back. After graduating from Texas A&M in 1989 with a degree in architecture, he spent five years running a grocery store in western Texas. Then he built, owned, and operated an inn in Wimberley, the town where the Lasners’ house is located. The first home he built was his own, and his design/build business took off from there.

Vernor, a trim, 5-mile-a-day runner, was in his mid-30s when he had an aneurysm during the construction of the Lasner residence. Afterwards, he finished the nine additional homes he had started or committed to, then took a two-year hiatus from building. Only now is he dipping a toe back into the water, spurred by his distress at the shoddy work he sees going up around him. “Some of the stuff people are building drives me crazy,” he says. He’s got several houses in the works, some of which he’s designed, making modifications to stock plans. “Building houses is what I enjoy,” he says sheepishly. “The force is strong.”

About the Author

Upcoming Events

  • Protecto Wall VP Standard Installation Video

    Webinar

    Register for Free
  • How Right-Sized Plumbing Saves Money, Saves Water, and Protects Wellness

    Webinar

    Register for Free
  • Building Careers from the Ground Up: The IUPAT Floor Covering Apprenticeship and Training Program

    Webinar

    Register for Free
All Events