The Paramount on Lake Eola, Orlando, Fla.

Orlando, Fla.

2 MIN READ

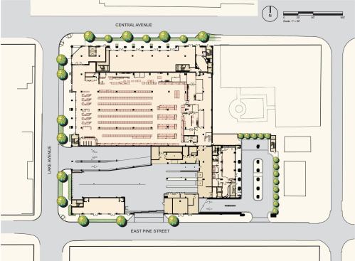
Designing The Paramount on Lake Eola was a little like planning a city on less than two acres. Mandatory elements included a 30,000-square-foot grocery store (with parking and loading dock), retail shops, offices, a pool and recreation deck, and residential floor plans diverse enough to accommodate price ranges from $200,000 to $1 million.

Add to that a city requirement that the ground level be scaled to match adjacent low-rise retail, a need to separate residential and supermarket parking, and the desire to wrap it all up in one seamless Art Deco/Mediterranean design, and you’ve got one tough challenge.

But not an impossible one. The building’s foundation, a five-story podium for the grocery store and retail shops, serves as a low module that helps smooth the transition for pedestrians between the low-rise feel of the adjacent Thornton Park neighborhood and the city’s skyscraper zone. A focal point at ground level is a curvy corner grocery entrance.

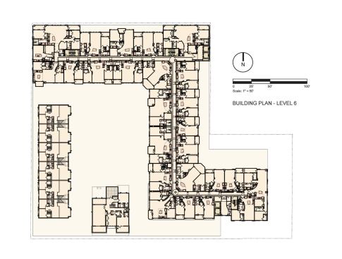
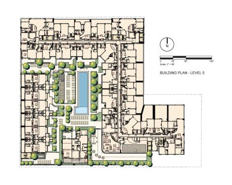
From that footing, a 16-story tower rises in three sections. Studded with balconies and intersected with wide expanses of silver-mullioned windows, the façade is far from flat. It indents here and there in a symmetrical way to downplay its street presence. Likewise, a fifth-floor amenity deck nestled in the center of the complex is flanked by two-story townhouses poolside. This break in massing helps to scale down what would otherwise be a canyon-like experience.

Ultimately, the project’s sales results speak to its success. Despite hitting the condo-bloated Orlando landscape at the near bottom of the market in June of 2008, 309 of the 313 units were sold a year later.

MERIT
Category: Condos, for sale
Entrant/Architect/Land planner: Looney Ricks Kiss Architects, Memphis, Tenn.
Builder: Hardin Construction Co., Orlando, Fla.
Developer: ZOM Florida, Ft. Lauderdale, Fla.
Interior designers: Looney Ricks Kiss, Memphis (common spaces); Architectural Design Studio, Orlando (model units)
Landscape Architect: Dix Lathrop and Associates, Longwood, Fla.

Learn more about markets featured in this article: Memphis, TN, Orlando, FL.

About the Author

Upcoming Events

  • Happier Homebuyers, Higher Profits: Specifying Fireplaces for Today’s Homes

    Webinar

    Register for Free
  • Sales is a Sport: These Tactics Are the Winning Play

    Webinar

    Register for Free
  • Dispelling Myths and Maximizing Value: Unlock the Potential of Open Web Floor Trusses

    Webinar

    Register for Free
All Events